Класс здания/комплекса
Бизнес
Этажность
5
Этаж
4
Лифт
да
Комнаты
4
Спальни
3
Ванные комнаты
3
Машиноместа на открытой парковке
1
Балконы (Террасы)
3
Туалеты
1

Площадь
150.68 м2
Этап строительства
В процессе строительства
Сдача планируется
Май 2029

Цена
Цена по запросу
Без комиссии от покупателя
Получить больше информации или запланировать осмотр
Инфо пакет
Состояние
под ключ (частично с мебелью)
Меблировка
Готовая кухня и ванная комната
Ванные комнаты
Оборудованная ванная комната
Полы
Паркетный пол, Терракотовый пол
Расстояния
Последняя актуализация
04.04.2026 г.
Расстояние от объекта до других важных точек
- Море: 100м
- Центр города: 2 км
- Аэропорт Kavala (KVA): 30 км
Вид, открывающийся из недвижимости
- Виды на море
Строительство
- Отреставрированное здание
- Полностью обновленное здание
Административная информация о предложении
КРЫША
- плоская крыша
САНУЗЛЫ И ПОДСОБНЫЕ ПОМЕЩЕНИЯ
- Балконы
- Ванная комната с туалетом
ИЗОЛЯЦИИ И РАБОТЫ ПО ОТДЕЛКЕ
- Армированная входная дверь
- Межкомнатные двери
- Окна ПВХ
- Паркетный пол
- Стены покрашенные латексной краской
- Терракотовый пол
МЕБЛИРОВКА И ОБОРУДОВАНИЕ
- Встроенная кухня
- Оборудованная ванная комната
УДОБСТВА В ЗДАНИИ
- Бассейн
Этот текст переведен с помощью автоматического программного обеспечения, поэтому в нем не исключаются неточности.
Вы можете ознакомиться с текстом на его оригинальном языке или в переводе на другие языки:
Представляем вашему вниманию четырехкомнатную квартиру в комплексе Beyond – впечатляющем проекте, реализованном путем полной реставрации бывшей фабрики по производству мороженого в Кавале, расположенной всего в нескольких шагах от моря. Концепция проекта заключается в том, чтобы вдохнуть новую жизнь в индустриальное наследие, превратив его в современное жилое пространство высокого качества и комфорта. Помимо просторных квартир, здание предложит тщательно подобранные удобства, дополняющие ощущение жизни у моря.
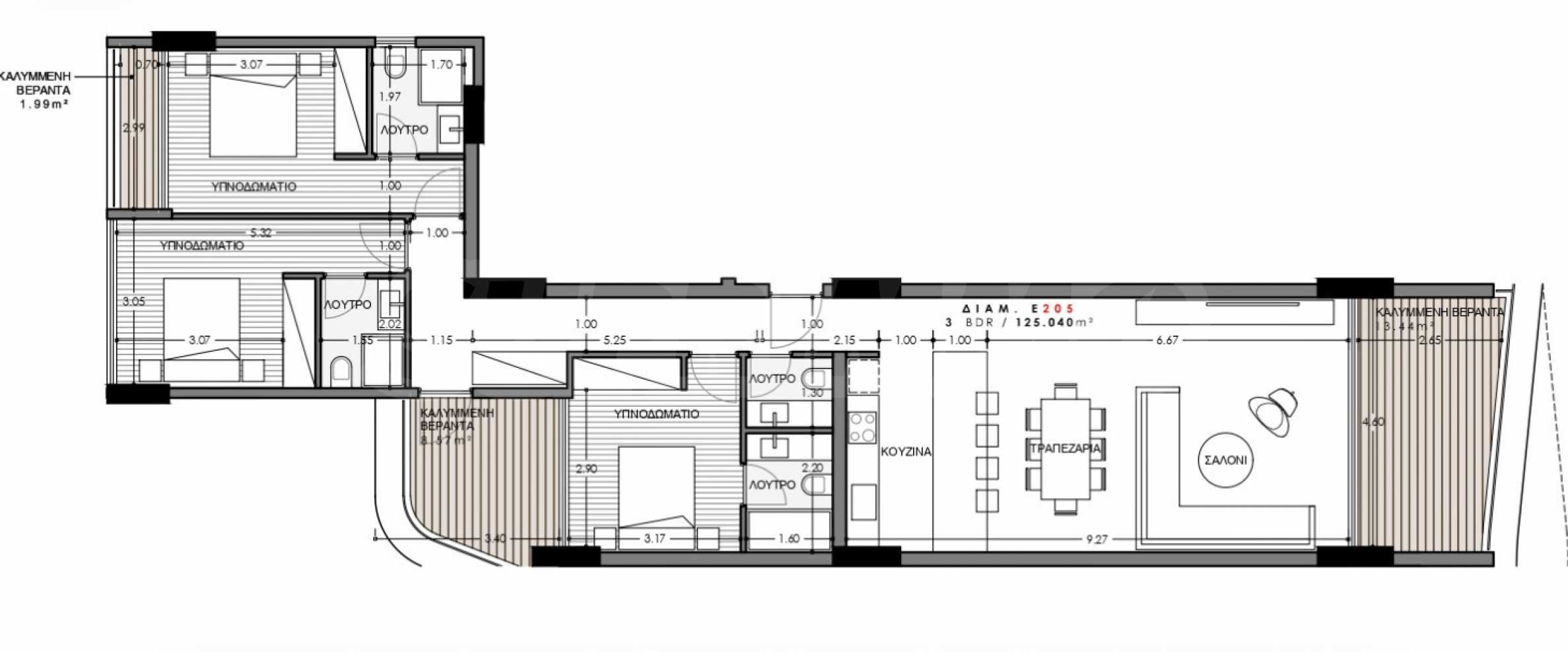
Предлагаемая нами квартира общей площадью 150,68 кв. м расположена на четвертом этаже. Планировка включает в себя светлую и просторную гостиную с кухней и обеденной зоной, три спальни, каждая со своей ванной комнатой, отдельный гостевой туалет, а также три террасы с разнообразными видами и возможностями для отдыха.
Престижное местоположение с огромным потенциалом
Кавала — очаровательный прибрежный городок, сочетающий в себе богатое культурное наследие, замечательную архитектуру и живописное побережье. В этом районе находятся одни из самых красивых пляжей — Амос, Батис, Тоска и Палио, отличающиеся кристально чистой водой и мелким золотистым песком. Побережье изобилует уютными пабами и ресторанами с панорамными видами, где можно насладиться свежей средиземноморской кухней или освежающим греческим фраппе.
Здание расположено в ключевом центральном месте, менее чем в 100 метрах от моря. Помимо прекрасного вида на побережье, оно обеспечивает быстрый доступ к центру города, а также к многочисленным удобствам — магазинам, ресторанам, аптекам и коммерческим предприятиям, которые делают повседневную жизнь проще и приятнее.
Город предлагает богатое разнообразие культурных и исторических достопримечательностей, включая впечатляющий акведук, аутентичный Старый населенный пункт и дом Мухаммеда Али — каждая из них хранит дух разных исторических эпох. Кавала — это не только популярное туристическое направление, но и отличное место для постоянного проживания благодаря хорошо развитой инфраструктуре и круглогодичным услугам.
О проекте Beyond
После полной реконструкции здание приобретет совершенно новый, современный облик, вдохновленный современными архитектурными тенденциями. Характерные изогнутые линии и стильные декоративные элементы на фасаде придадут проекту неповторимый вид в прибрежном силуэте. Встроенная подсветка фасада подчеркнет архитектурные детали и создаст впечатляющую атмосферу в ночное время.
В здании расположены трех-, четырех- и пятикомнатные квартиры с продуманной планировкой и лаконичным дизайном, отвечающие требованиям современного образа жизни. Квартиры предлагаются «под ключ» – с высококачественными дверями, напольным покрытием, освещением, полностью оборудованными кухнями и элегантно отделанными ванными комнатами. Используемые материалы отличаются проверенным качеством и долговечностью, что обеспечивает отличную основу для индивидуальной отделки интерьера в соответствии со стилем будущих владельцев.
Помимо удобств в жилых помещениях, проект также предлагает ряд общих зон, призванных усилить ощущение комфорта и приморского образа жизни. Здесь будет бассейн с зонами отдыха, специально отведенные места для барбекю и элегантные беседки с открытыми обеденными зонами — идеально подходящие для совместного времяпрепровождения с близкими, наслаждаясь видом на море и свежим бризом.
Свяжитесь с нами для получения дополнительной информации и профессиональной консультации.
Смотр недвижимости
Мы можем организовать и сопровождать Вас во время смотра недвижимости в удобное для Вас время. Мы и наши сотрудники в офисе в Греции в Вашем распоряжении в течение всей недели, Вам необходимо только предварительно договориться с нами о встрече. Свяжитесь с ответственным риэлтором данного предложения и проинформируйте его, когда Вы хотели бы посмотреть данный объект.
Процедура покупки недвижимости в Греции
Недвижимость может быть забронирована и снята с продажи оплатой задатка, после чего прекращается проведение смотров с другими покупателями и начинается подготовка документов для заключения окончательного договора о передаче права собственности. Свяжитесь с ответственным за данный объект риэлтором для получения подробной информации об особенностях процедуры покупки недвижимости в Греции.
Дополнительные услуги
Воспользуйтесь нашими дополнительными услугами в Болгарии и за рубежом. Мы предлагаем страхование движимого и недвижимого имущества, страхование жизни, медицинское и авто-страхование, строительные и ремонтные работы, меблировку, юридические и бухгалтерские услуги и многое другое.
Предлагаемая нами квартира общей площадью 150,68 кв. м расположена на четвертом этаже. Планировка включает в себя светлую и просторную гостиную с кухней и обеденной зоной, три спальни, каждая со своей ванной комнатой, отдельный гостевой туалет, а также три террасы с разнообразными видами и возможностями для отдыха.
Престижное местоположение с огромным потенциалом
Кавала — очаровательный прибрежный городок, сочетающий в себе богатое культурное наследие, замечательную архитектуру и живописное побережье. В этом районе находятся одни из самых красивых пляжей — Амос, Батис, Тоска и Палио, отличающиеся кристально чистой водой и мелким золотистым песком. Побережье изобилует уютными пабами и ресторанами с панорамными видами, где можно насладиться свежей средиземноморской кухней или освежающим греческим фраппе.
Здание расположено в ключевом центральном месте, менее чем в 100 метрах от моря. Помимо прекрасного вида на побережье, оно обеспечивает быстрый доступ к центру города, а также к многочисленным удобствам — магазинам, ресторанам, аптекам и коммерческим предприятиям, которые делают повседневную жизнь проще и приятнее.
Город предлагает богатое разнообразие культурных и исторических достопримечательностей, включая впечатляющий акведук, аутентичный Старый населенный пункт и дом Мухаммеда Али — каждая из них хранит дух разных исторических эпох. Кавала — это не только популярное туристическое направление, но и отличное место для постоянного проживания благодаря хорошо развитой инфраструктуре и круглогодичным услугам.
О проекте Beyond
После полной реконструкции здание приобретет совершенно новый, современный облик, вдохновленный современными архитектурными тенденциями. Характерные изогнутые линии и стильные декоративные элементы на фасаде придадут проекту неповторимый вид в прибрежном силуэте. Встроенная подсветка фасада подчеркнет архитектурные детали и создаст впечатляющую атмосферу в ночное время.
В здании расположены трех-, четырех- и пятикомнатные квартиры с продуманной планировкой и лаконичным дизайном, отвечающие требованиям современного образа жизни. Квартиры предлагаются «под ключ» – с высококачественными дверями, напольным покрытием, освещением, полностью оборудованными кухнями и элегантно отделанными ванными комнатами. Используемые материалы отличаются проверенным качеством и долговечностью, что обеспечивает отличную основу для индивидуальной отделки интерьера в соответствии со стилем будущих владельцев.
Помимо удобств в жилых помещениях, проект также предлагает ряд общих зон, призванных усилить ощущение комфорта и приморского образа жизни. Здесь будет бассейн с зонами отдыха, специально отведенные места для барбекю и элегантные беседки с открытыми обеденными зонами — идеально подходящие для совместного времяпрепровождения с близкими, наслаждаясь видом на море и свежим бризом.
Свяжитесь с нами для получения дополнительной информации и профессиональной консультации.
Смотр недвижимости
Мы можем организовать и сопровождать Вас во время смотра недвижимости в удобное для Вас время. Мы и наши сотрудники в офисе в Греции в Вашем распоряжении в течение всей недели, Вам необходимо только предварительно договориться с нами о встрече. Свяжитесь с ответственным риэлтором данного предложения и проинформируйте его, когда Вы хотели бы посмотреть данный объект.
Процедура покупки недвижимости в Греции
Недвижимость может быть забронирована и снята с продажи оплатой задатка, после чего прекращается проведение смотров с другими покупателями и начинается подготовка документов для заключения окончательного договора о передаче права собственности. Свяжитесь с ответственным за данный объект риэлтором для получения подробной информации об особенностях процедуры покупки недвижимости в Греции.
Дополнительные услуги
Воспользуйтесь нашими дополнительными услугами в Болгарии и за рубежом. Мы предлагаем страхование движимого и недвижимого имущества, страхование жизни, медицинское и авто-страхование, строительные и ремонтные работы, меблировку, юридические и бухгалтерские услуги и многое другое.
Прочтите текст на других языках (автоматический перевод)
Месторасположение (приблизительно)
Красным маркером на карте указано приблизительное месторасположение этого объекта недвижимости.
Наши лучшие предложения по продажа в Kavala, Греция


ORIGINAL: