Только для
частных лиц!
частных лиц!
Новый дом с отделкой из штукатурки и оштукатуренным двориком в бутиковом комплексе Serenity Six, недалеко от Ахелоя.
REF#LXH-137283 / Дом / Вблизи г. Ахелой / Бургасская область / Болгария / Продажа На карте
Этажность
2
Комнаты
7
Спальни
3
Ванные комнаты
2
Машиноместа на открытой парковке
2
Балконы (Террасы)
3
Туалеты
3

Площадь здания
182 м2
Площадь участка
300 м2
Получен Акт 16

Цена
165 000 €
Получить больше информации или запланировать осмотр
Инфо пакет
Состояние
по болгарскому ГОСТу (готово для отделочных работ)
Меблировка
Немеблированная
Отопление
Камин / Отопление кондиционером
Расстояния
Последняя актуализация
12.03.2026 г.
Расстояние от объекта до других важных точек
Строительство
- Кирпич
Отопление
- Камин
- Отопление кондиционером
Административная информация о предложении
ГАЗИФИКАЦИЯ, ЭЛЕКТРИЧЕСТВО
- Электричество
ВОДОСНАБЖЕНИЕ
- Собственное водоснабжение
ИЗОЛЯЦИИ И РАБОТЫ ПО ОТДЕЛКЕ
- Без меблировки
ДВОР И САД
- Двор
Этот текст переведен с помощью автоматического программного обеспечения, поэтому в нем не исключаются неточности.
Вы можете ознакомиться с текстом на его оригинальном языке или в переводе на другие языки:
Предлагаем к продаже пять новых домов с оштукатуренными стенами (без отделочных работ), входящих в бутик-комплекс Serenity Six, расположенный между Каблешково и Ахелоем, примерно в 5 минутах езды от моря.
На фотографиях вы видите один из шести домов – единственный, полностью готовый к заселению, а также визуализации интерьера, которые помечены соответствующим образом.
Оставшиеся пять домов предлагаются в их нынешнем состоянии — со штукатуркой и стяжкой.
Основные параметры:
• Общая площадь: 182 м2.
• Двор: 300 м2.
• Парковочное место для двух автомобилей на переднем дворе (подъездная дорожка).
Распределение:
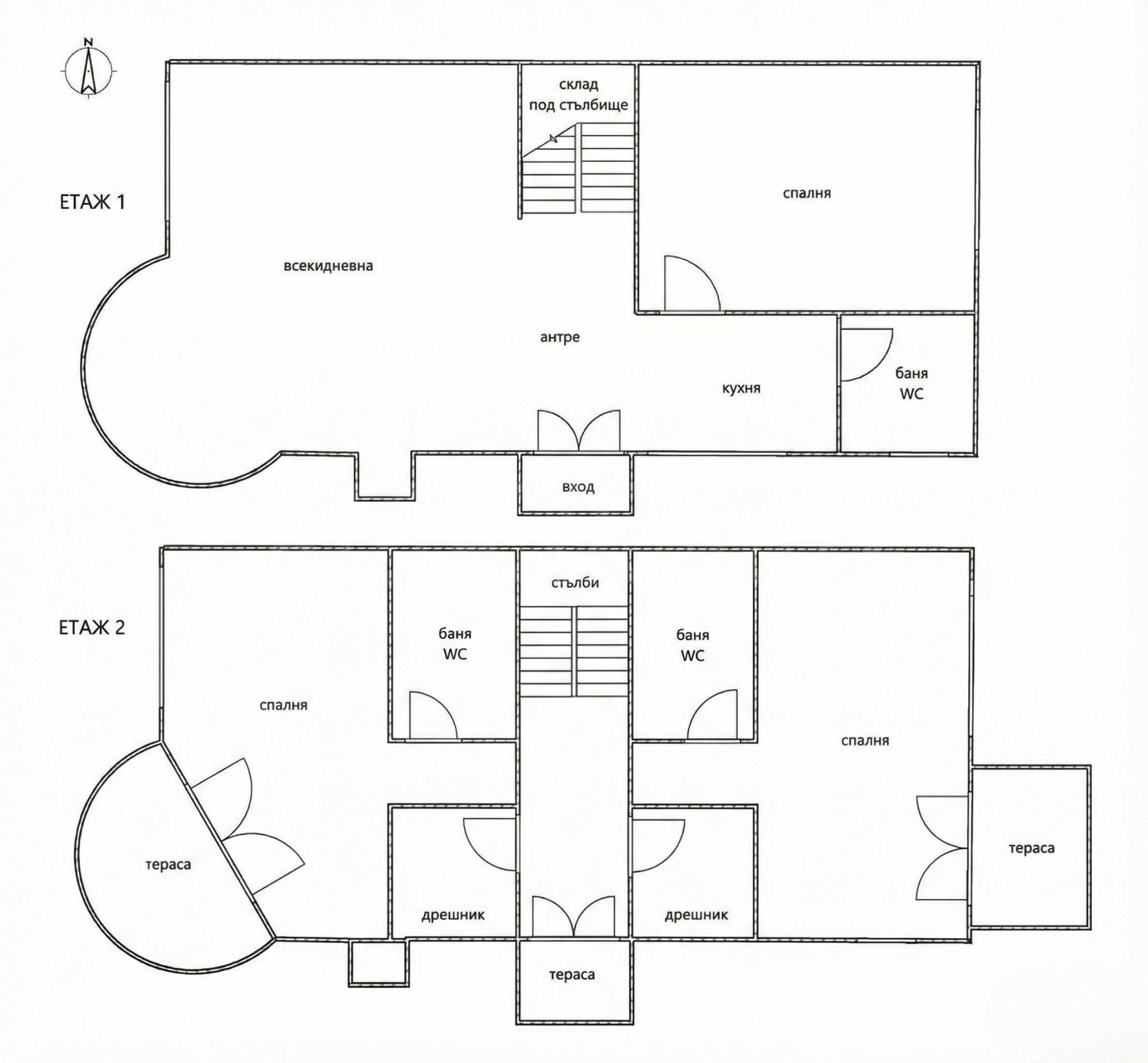
Первый этаж:
• Просторная гостиная площадью 42 кв. м с камином и выходом во двор;
• кухня и столовая;
• гостевой туалет;
• Спальня площадью 16 кв. м, подходит для гостиной, кабинета или тренажерного зала.
Второй этаж:
• Две большие спальни площадью 22 кв. м, каждая со своей ванной комнатой с туалетом (примыкающей к спальне) и нишей для гардероба;
• Главная спальня имеет круглую террасу;
• вторая спальня с небольшой террасой;
• На этом же этаже находится третья терраса, на которую можно попасть с лестничной площадки между двумя спальнями.
Дополнительные опции:
• Возможность строительства бассейна по желанию покупателя;
• Возможность объединить два соседних дома в один дом с 6 спальнями;
• Комплекс имеет собственный источник водоснабжения и встроенную септическую систему.
Закон от 16 декабря 2025 года
Залог: 2000 евро
Проект Serenity Six — это прекрасная возможность приобрести новый дом недалеко от моря, с возможностью отделки в соответствии с личными предпочтениями.
Смотр недвижимости
Мы готовы организовать смотр недвижимости в удобное для вас время. Обратитесь к ответственному менеджеру по продажам и проинформируйте его, когда бы Вы хотели приехать на смотровой тур. Мы можем помочь Вам забронировать авиабилет и отель, а также помочь Вам оформить визу и необходимую страховку.
Бронирование недвижимости
Вы можете забронировать недвижимость, заплатив невозмещаемый задаток в размере 2 000 евро наличным платежом, кредитной картой или банковским переводом на фирменный счет компании. После получения задатка недвижимость бронируется, осмотры с другими потенциальными покупателями производиться не будут, и начнется изготовление необходимых документов по оформлению сделки. Пожалуйста, обратитесь к ответственному за данный объект менеджеру по продажам для получения подробной информации относительно процедуры покупки и способов оплаты.
Послепродажное обслуживание
Мы уважаемая компания, за плечами которой многолетний опыт работы в сфере недвижимости. Мы будем сопровождать Вас не только во время покупки, но и после приобретения недвижимости, обеспечивая Вам дополнительный набор услуг с учетом Ваших требовании, для того, чтобы Вы могли насладиться полноценным и спокойным времяпровождением в Болгарии. Услуги, которые мы можем предложить, включают страхование, строительство и ремонт, услуги по меблировке, бухгалтерские и юридическиe услуги, переоформление договоров на электричество, воду, телефон и многое другое.
На фотографиях вы видите один из шести домов – единственный, полностью готовый к заселению, а также визуализации интерьера, которые помечены соответствующим образом.
Оставшиеся пять домов предлагаются в их нынешнем состоянии — со штукатуркой и стяжкой.
Основные параметры:
• Общая площадь: 182 м2.
• Двор: 300 м2.
• Парковочное место для двух автомобилей на переднем дворе (подъездная дорожка).
Распределение:
Первый этаж:
• Просторная гостиная площадью 42 кв. м с камином и выходом во двор;
• кухня и столовая;
• гостевой туалет;
• Спальня площадью 16 кв. м, подходит для гостиной, кабинета или тренажерного зала.
Второй этаж:
• Две большие спальни площадью 22 кв. м, каждая со своей ванной комнатой с туалетом (примыкающей к спальне) и нишей для гардероба;
• Главная спальня имеет круглую террасу;
• вторая спальня с небольшой террасой;
• На этом же этаже находится третья терраса, на которую можно попасть с лестничной площадки между двумя спальнями.
Дополнительные опции:
• Возможность строительства бассейна по желанию покупателя;
• Возможность объединить два соседних дома в один дом с 6 спальнями;
• Комплекс имеет собственный источник водоснабжения и встроенную септическую систему.
Закон от 16 декабря 2025 года
Залог: 2000 евро
Проект Serenity Six — это прекрасная возможность приобрести новый дом недалеко от моря, с возможностью отделки в соответствии с личными предпочтениями.
Смотр недвижимости
Мы готовы организовать смотр недвижимости в удобное для вас время. Обратитесь к ответственному менеджеру по продажам и проинформируйте его, когда бы Вы хотели приехать на смотровой тур. Мы можем помочь Вам забронировать авиабилет и отель, а также помочь Вам оформить визу и необходимую страховку.
Бронирование недвижимости
Вы можете забронировать недвижимость, заплатив невозмещаемый задаток в размере 2 000 евро наличным платежом, кредитной картой или банковским переводом на фирменный счет компании. После получения задатка недвижимость бронируется, осмотры с другими потенциальными покупателями производиться не будут, и начнется изготовление необходимых документов по оформлению сделки. Пожалуйста, обратитесь к ответственному за данный объект менеджеру по продажам для получения подробной информации относительно процедуры покупки и способов оплаты.
Послепродажное обслуживание
Мы уважаемая компания, за плечами которой многолетний опыт работы в сфере недвижимости. Мы будем сопровождать Вас не только во время покупки, но и после приобретения недвижимости, обеспечивая Вам дополнительный набор услуг с учетом Ваших требовании, для того, чтобы Вы могли насладиться полноценным и спокойным времяпровождением в Болгарии. Услуги, которые мы можем предложить, включают страхование, строительство и ремонт, услуги по меблировке, бухгалтерские и юридическиe услуги, переоформление договоров на электричество, воду, телефон и многое другое.
Прочтите текст на других языках (автоматический перевод)
Месторасположение (абсолютно точное)
Маркером отмечено абсолютно точное месторасположение этого объекта. Масштаб карты можно увеличивать и уменьшать, а также передвигаться по карте с помощью мышки или кнопок на карте.
Наши лучшие предложения по продажа в Ахелой, Болгария
Недвижимость по району
все по городу
Недвижимость по типу, Ахелой
- Инвестиционные земли в Ахелой
- Дома в Ахелой
- Трёхкомнатные квартиры в Ахелой
- Квартиры-студии в Ахелой
- Апартаменты (различные типы) в Ахелой
- Четырехкомнатные квартиры в Ахелой
- Виллы в Ахелой
- Промышленные земли в Ахелой
- Сельскохозяйственные земли в Ахелой
- Пентхаусы в двух уровнях в Ахелой


ORIGINAL: