Этажность
7
Этаж
партер
Лифт
да
Комнаты
2
Спальни
1
Ванные комнаты
1
Балконы (Террасы)
1

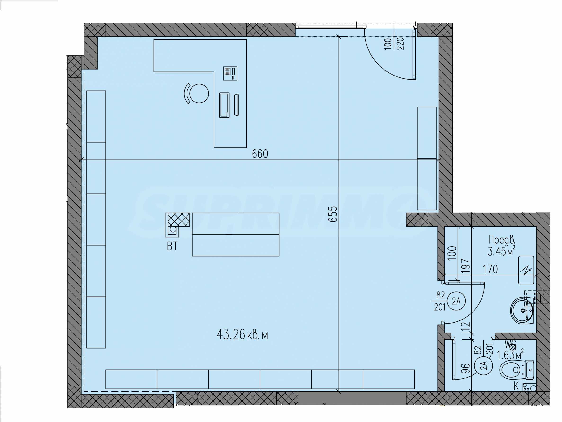
Площадь
64.49 м2
Жилая площадь
54.40 м2
Общие части
10.09 м2
Этап строительства
В процессе строительства
Сдача планируется
Март 2026

Цена
167 670 €
2 600 €/м2
Без комиссии от покупателя
Получить больше информации или запланировать осмотр
Инфо пакет
Состояние
по болгарскому ГОСТу (готово для отделочных работ)
Меблировка
Немеблированная
Окна
Окна ПВХ
Расстояния
Последняя актуализация
11.11.2025 г.
Расстояние от объекта до других важных точек
- Центр города: 3.9 км
- Аэропорт Plovdiv (PDV): 13.5 км
Вид, открывающийся из недвижимости
- Виды на город
Строительство
- Железобетонная конструкция
- Кирпич
Административная информация о предложении
ГАЗИФИКАЦИЯ, ЭЛЕКТРИЧЕСТВО
- Электричество
ВОДОСНАБЖЕНИЕ
- Вода
- Центральное водоснабжение
ЛИФТЫ
- автоматические двери
- люксовые лифты
КАНАЛИЗАЦИЯ
- Канализация
САНУЗЛЫ И ПОДСОБНЫЕ ПОМЕЩЕНИЯ
- Ванная комната с туалетом
- Терраса
ИЗОЛЯЦИИ И РАБОТЫ ПО ОТДЕЛКЕ
- Без меблировки
- Окна ПВХ
УДОБСТВА В ЗДАНИИ
- Бассейн
- Лифт
- Общие части с отделкой люкс
ДВОР И САД
- Хорошо ухоженный сад
- Цветочный сад
ДРУГИЕ
- Продуктовый магазин поблизости
Этот текст переведен с помощью автоматического программного обеспечения, поэтому в нем не исключаются неточности.
Вы можете ознакомиться с текстом на его оригинальном языке или в переводе на другие языки:
Представляем коммерческое помещение в новом жилом комплексе, в районе «Каменица 2». Отличное расположение в непосредственной близости от центральной части города, коммуникаций, школы, детских площадок, ресторанов, торговых заведений, в 3 км от центра и в 15 км от аэропорта Пловдива.
В здании имеется Акт 14, получение Акта 16 ожидается в марте 2026 года.
Роскошный дизайн комплекса гарантирует вам отдых и душевное спокойствие. Он состоит из 4 жилых зданий с 7 подъездами и располагает элегантным внутренним двором с обилием зелени, предназначенным только для жильцов. На первом этаже расположены коммерческие помещения, а также подземная и открытая парковка, которые можно приобрести отдельно. Просторные квартиры с одной или двумя спальнями обеспечат вам и вашей семье комфортное и современное жильё.
Параметры недвижимости
Коммерческое помещение общей площадью 64,49 кв.м расположено на первом этаже 7 дома и имеет следующую планировку:
• коммерческие помещения;
• ванная комната с туалетом;
Недвижимость продается в состоянии, отвечающем болгарским строительным нормам, со штукатуркой и стяжкой.
На первом этаже предусмотрены подземные и открытые парковочные места, которые можно приобрести дополнительно.
Проект от проверенного инвестора с большим опытом в строительстве.
Технические характеристики:
• монолитная железобетонная конструкция с наружными кирпичными стенами толщиной 25 см с эффективной теплоизоляцией по проекту энергоэффективности;
• плоские кровли с эффективной тепло-, гидро- и пароизоляцией, битумной мембраной;
• 5-камерные стеклопакеты с низкоэмиссионным стеклом;
• фасад - отделка утеплителем и полимерной штукатуркой;
• терраса - гранитное покрытие;
• входная дверь - бронированная, установлена;
• высококачественные электрические лифты с безмашинными помещениями и роскошными кабинами;
• роскошно оформленный вестибюль;
• роскошно обставленные и оборудованные площадки перед лифтами на каждом этаже;
• лестница - отделана напольным покрытием и гранитной плиткой;
• контролируемый доступ, видеонаблюдение.
Мы предлагаем уникальную возможность приобрести собственное жилье в одном из самых коммуникационных районов города!
План оплаты:
• депозит за бронирование - 4602 евро (9000 левов);
• 20% - по предварительному договору;
• 80% - после 16 акта.
Свяжитесь с нами, чтобы получить дополнительную информацию о всех доступных квартирах, ценах и условиях оплаты. Наши консультанты готовы ответить на все ваши вопросы и оказать необходимую помощь в заключении сделки.
Смотр недвижимости
Мы готовы организовать смотр недвижимости в удобное для вас время. Обратитесь к ответственному менеджеру по продажам и проинформируйте его, когда бы Вы хотели приехать на смотровой тур. Мы можем помочь Вам забронировать авиабилет и отель, а также помочь Вам оформить визу и необходимую страховку.
Бронирование недвижимости
Вы можете забронировать недвижимость, заплатив невозмещаемый задаток в размере 2 000 евро наличным платежом, кредитной картой или банковским переводом на фирменный счет компании. После получения задатка недвижимость бронируется, осмотры с другими потенциальными покупателями производиться не будут, и начнется изготовление необходимых документов по оформлению сделки. Пожалуйста, обратитесь к ответственному за данный объект менеджеру по продажам для получения подробной информации относительно процедуры покупки и способов оплаты.
Послепродажное обслуживание
Мы ответственная компания, за плечами которой многолетний опыт работы в сфере недвижимости. Мы будем сопровождать Вас не только во время покупки, но и после приобретения недвижимости, обеспечивая Вам дополнительный набор услуг с учетом Ваших требовании, для того, чтобы Вы могли насладиться полноценным и спокойным времяпровождением в Болгарии. Услуги, которые мы можем предложить, включают страхование, строительство и ремонт, услуги по меблировке, бухгалтерские и юридическиe услуги, переоформление договоров на электричество, воду, телефон и многое другое.
В здании имеется Акт 14, получение Акта 16 ожидается в марте 2026 года.
Роскошный дизайн комплекса гарантирует вам отдых и душевное спокойствие. Он состоит из 4 жилых зданий с 7 подъездами и располагает элегантным внутренним двором с обилием зелени, предназначенным только для жильцов. На первом этаже расположены коммерческие помещения, а также подземная и открытая парковка, которые можно приобрести отдельно. Просторные квартиры с одной или двумя спальнями обеспечат вам и вашей семье комфортное и современное жильё.
Параметры недвижимости
Коммерческое помещение общей площадью 64,49 кв.м расположено на первом этаже 7 дома и имеет следующую планировку:
• коммерческие помещения;
• ванная комната с туалетом;
Недвижимость продается в состоянии, отвечающем болгарским строительным нормам, со штукатуркой и стяжкой.
На первом этаже предусмотрены подземные и открытые парковочные места, которые можно приобрести дополнительно.
Проект от проверенного инвестора с большим опытом в строительстве.
Технические характеристики:
• монолитная железобетонная конструкция с наружными кирпичными стенами толщиной 25 см с эффективной теплоизоляцией по проекту энергоэффективности;
• плоские кровли с эффективной тепло-, гидро- и пароизоляцией, битумной мембраной;
• 5-камерные стеклопакеты с низкоэмиссионным стеклом;
• фасад - отделка утеплителем и полимерной штукатуркой;
• терраса - гранитное покрытие;
• входная дверь - бронированная, установлена;
• высококачественные электрические лифты с безмашинными помещениями и роскошными кабинами;
• роскошно оформленный вестибюль;
• роскошно обставленные и оборудованные площадки перед лифтами на каждом этаже;
• лестница - отделана напольным покрытием и гранитной плиткой;
• контролируемый доступ, видеонаблюдение.
Мы предлагаем уникальную возможность приобрести собственное жилье в одном из самых коммуникационных районов города!
План оплаты:
• депозит за бронирование - 4602 евро (9000 левов);
• 20% - по предварительному договору;
• 80% - после 16 акта.
Свяжитесь с нами, чтобы получить дополнительную информацию о всех доступных квартирах, ценах и условиях оплаты. Наши консультанты готовы ответить на все ваши вопросы и оказать необходимую помощь в заключении сделки.
Смотр недвижимости
Мы готовы организовать смотр недвижимости в удобное для вас время. Обратитесь к ответственному менеджеру по продажам и проинформируйте его, когда бы Вы хотели приехать на смотровой тур. Мы можем помочь Вам забронировать авиабилет и отель, а также помочь Вам оформить визу и необходимую страховку.
Бронирование недвижимости
Вы можете забронировать недвижимость, заплатив невозмещаемый задаток в размере 2 000 евро наличным платежом, кредитной картой или банковским переводом на фирменный счет компании. После получения задатка недвижимость бронируется, осмотры с другими потенциальными покупателями производиться не будут, и начнется изготовление необходимых документов по оформлению сделки. Пожалуйста, обратитесь к ответственному за данный объект менеджеру по продажам для получения подробной информации относительно процедуры покупки и способов оплаты.
Послепродажное обслуживание
Мы ответственная компания, за плечами которой многолетний опыт работы в сфере недвижимости. Мы будем сопровождать Вас не только во время покупки, но и после приобретения недвижимости, обеспечивая Вам дополнительный набор услуг с учетом Ваших требовании, для того, чтобы Вы могли насладиться полноценным и спокойным времяпровождением в Болгарии. Услуги, которые мы можем предложить, включают страхование, строительство и ремонт, услуги по меблировке, бухгалтерские и юридическиe услуги, переоформление договоров на электричество, воду, телефон и многое другое.
Прочтите текст на других языках (автоматический перевод)
Месторасположение (приблизительно)
Красным маркером на карте указано приблизительное месторасположение этого объекта недвижимости.
Наши лучшие предложения по продажа в Пловдив, Болгария
Недвижимость по району, Пловдив
- Недвижимость в р-н«Смирненски«
- Недвижимость в р-н«Кыршияка«
- Недвижимость в р-н«Остромила«
- Недвижимость в р-н«Беломорски«
- Недвижимость в р-н«Центр«
- Недвижимость в р-н«Тракия«
- Недвижимость в р-н«Кючук Париж«
- Недвижимость в р-н«Гагарин«
- Недвижимость в р-н«Каменица 2«
- Недвижимость в р-н«Каменица 1«
Недвижимость по типу, Пловдив
- Трёхкомнатные квартиры в Пловдив
- Двухкомнатные квартиры в Пловдив
- Апартаменты (различные типы) в Пловдив
- Четырехкомнатные квартиры в Пловдив
- Дома в Пловдив
- Квартиры-студии в Пловдив
- Магазины в Пловдив
- Сельскохозяйственные земли в Пловдив
- Пятикомнатные квартиры в Пловдив
- Инвестиционные земли в Пловдив


ORIGINAL: