REF#Kbs 134973 / Инвестиционный проект / р-н Крайморие / г. Бургас / Бургасская область / Болгария / Продажа На карте

Площадь
30000 м2
Сад
30000 м2

Цена
5 100 000 €
(без НДС)
170 €/м2
(без НДС)
Получить больше информации или запланировать осмотр
Инфо пакет
Меблировка
Немеблированная
Расстояния
Последняя актуализация
17.12.2025 г.
Расстояние от объекта до других важных точек
Административная информация о предложении
Этот текст переведен с помощью автоматического программного обеспечения, поэтому в нем не исключаются неточности.
Вы можете ознакомиться с текстом на его оригинальном языке или в переводе на другие языки:
Инвестиционный проект «Ченгене Консорт» — парк Росенец, Бургас.
Местоположение: Проект «Chengene Consort» расположен всего в 20 минутах езды от центра Бургаса, в одном из самых живописных районов южного побережья Черного моря — парке Росенец, рыбацкой деревне — местности Ченгене Скеле.
Этот район динамично развивается и становится новым элитным районом Бургаса. Муниципалитет Бургаса уже построил рестораны, аллеи и аттракционы на берегу моря, формируя новую зону отдыха, туризма и элитной жизни.
Участок расположен над небольшой бухтой, откуда открывается обширная панорама на море и населенный пункт. Благодаря естественному возвышению, из каждого дома открывается вид на море, что подчёркивает природную красоту местности.
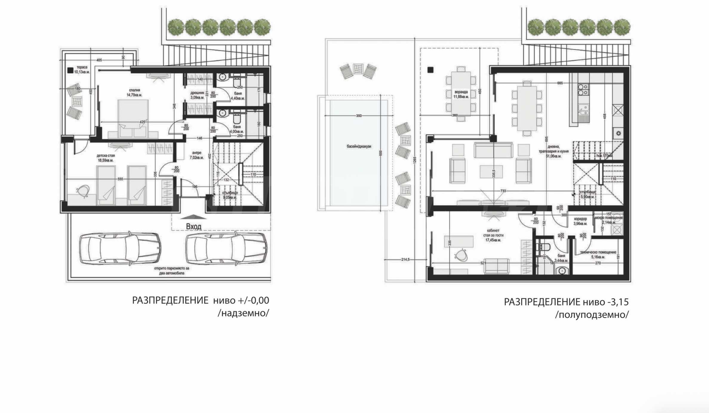
Концепция и параметры проекта: Утвержденный Детальный план развития (ДПЗ) предусматривает строительство коттеджного поселка «Консорт» — современного жилого комплекса из 40 односемейных домов и здания общественного назначения, расположенного на регулируемом земельном участке площадью 27 668 кв. м.
(общая площадь по эскизу – 30 369 кв. метров).
Проект разработан с учётом природного окружения, архитектурной гармонии и комфорта будущих жильцов. Каждый дом имеет двор, веранду, панорамную террасу и собственный бассейн.
Типы зданий:
Тип А – 15 штук
Площадь: 172,99 кв. метров.
Общая площадь: 331,90 кв. метров.
Тип Б – 7 штук
Площадь: 140,51 кв. метров.
Общая площадь: 271,80 кв. метров.
Тип Б – 18 штук
Площадь: 86,38 кв. метров.
Общая площадь: 206,19 кв. метров.
Здание общего пользования – 1 шт.
Площадь: 260 кв. метров.
Общая площадь: 520 кв. метров.
Общая площадь: 5 393,26 кв. м.
Общая площадь застройки: 11 112,52 кв. м
Инфраструктура и коммуникации:
Асфальтированный подъезд к участку;
Проведено электричество, вода и канализация;
Утвержденный генеральный план и проектная документация;
Перепад высот с панорамными видами со всех уровней;
Район с развитой социальной и туристической инфраструктурой.
Параметры инвестиций
• Площадь объекта: 30 369 кв. м (регулируемая площадь согласно Генплану – 27 668 кв. м)
• Цена: 170 евро/кв. метров без НДС
• Статус: урбанизированная территория с ПУП-ПЗ
• Акт: 21.02.2025
• Форма приобретения: возможность покупки через компанию – без НДС
• Владелец: индивидуальный предприниматель, полностью сотрудничает со сделкой
Расположение и доступность
• Бургас – 14 км
• Созополь – 21 км
• Автобусная остановка «Граничар» – 1 км.
• Рыбацкая деревня «Ченгене Скеле» – 500 м
• Пляж Отманли – 500 м
Основные преимущества
• Премиальное расположение в парке Росенец с видом на море
• Утвержденный ПУП и готовый архитектурный проект
• Полностью развитая инфраструктура
• Высота над уровнем моря, гарантирующая вид на море
• Удобный доступ к Бургасу и Созополю
• Гибкая форма сделки – через компанию без обязательств
• Высокий потенциал для развития курортного или жилого поселка
Мы с нетерпением ждем вашего запроса.
Если вы хотите договориться о просмотре интересующего вас объекта недвижимости или посетить один из наших офисов, пожалуйста, свяжитесь с нами. Чтобы договориться о встрече или просмотре, позвоните по указанному в объявлении номеру телефона или отправьте запрос по электронной почте. Наш консультант свяжется с вами по всем необходимым вопросам и подберет удобное для вас время.
Вы ищете подходящую для себя недвижимость?
Не стесняйтесь обращаться к нам и рассказать о своих потребностях и предпочтениях. Наша команда проведёт тщательное исследование рынка, чтобы предложить вам недвижимость, которая точно соответствует вашим критериям. У нас есть исключительное портфолио высококачественных и эксклюзивных домов, доступных только нашим клиентам. Чтобы первыми получать информацию о них, свяжитесь с нами.
Дополнительные услуги
Став нашим ценным клиентом, вы получите право пользоваться услугами нашей опытной юридической команды совершенно бесплатно. Кроме того, мы предлагаем комплексные решения, включая страхование имущества, бесплатные финансовые консультации и выгодные условия финансирования. Мы также предлагаем услуги по перепродаже, аренде и управлению недвижимостью. Мы осуществляем высококачественный ремонт и меблировку через специализированные компании, входящие в нашу группу компаний и являющиеся нашими давними профессиональными партнерами.
Смотр недвижимости
Мы готовы организовать смотр недвижимости в удобное для вас время. Обратитесь к ответственному менеджеру по продажам и проинформируйте его, когда бы Вы хотели приехать на смотровой тур. Мы можем помочь Вам забронировать авиабилет и отель, а также помочь Вам оформить визу и необходимую страховку.
Бронирование недвижимости
Вы можете забронировать недвижимость, заплатив невозмещаемый задаток в размере 2 000 евро наличным платежом, кредитной картой или банковским переводом на фирменный счет компании. После получения задатка недвижимость бронируется, осмотры с другими потенциальными покупателями производиться не будут, и начнется изготовление необходимых документов по оформлению сделки. Пожалуйста, обратитесь к ответственному за данный объект менеджеру по продажам для получения подробной информации относительно процедуры покупки и способов оплаты.
Послепродажное обслуживание
Мы уважаемая компания, за плечами которой многолетний опыт работы в сфере недвижимости. Мы будем сопровождать Вас не только во время покупки, но и после приобретения недвижимости, обеспечивая Вам дополнительный набор услуг с учетом Ваших требовании, для того, чтобы Вы могли насладиться полноценным и спокойным времяпровождением в Болгарии. Услуги, которые мы можем предложить, включают страхование, строительство и ремонт, услуги по меблировке, бухгалтерские и юридическиe услуги, переоформление договоров на электричество, воду, телефон и многое другое.
Местоположение: Проект «Chengene Consort» расположен всего в 20 минутах езды от центра Бургаса, в одном из самых живописных районов южного побережья Черного моря — парке Росенец, рыбацкой деревне — местности Ченгене Скеле.
Этот район динамично развивается и становится новым элитным районом Бургаса. Муниципалитет Бургаса уже построил рестораны, аллеи и аттракционы на берегу моря, формируя новую зону отдыха, туризма и элитной жизни.
Участок расположен над небольшой бухтой, откуда открывается обширная панорама на море и населенный пункт. Благодаря естественному возвышению, из каждого дома открывается вид на море, что подчёркивает природную красоту местности.
Концепция и параметры проекта: Утвержденный Детальный план развития (ДПЗ) предусматривает строительство коттеджного поселка «Консорт» — современного жилого комплекса из 40 односемейных домов и здания общественного назначения, расположенного на регулируемом земельном участке площадью 27 668 кв. м.
(общая площадь по эскизу – 30 369 кв. метров).
Проект разработан с учётом природного окружения, архитектурной гармонии и комфорта будущих жильцов. Каждый дом имеет двор, веранду, панорамную террасу и собственный бассейн.
Типы зданий:
Общая площадь: 5 393,26 кв. м.
Общая площадь застройки: 11 112,52 кв. м
Инфраструктура и коммуникации:
Параметры инвестиций
• Площадь объекта: 30 369 кв. м (регулируемая площадь согласно Генплану – 27 668 кв. м)
• Цена: 170 евро/кв. метров без НДС
• Статус: урбанизированная территория с ПУП-ПЗ
• Акт: 21.02.2025
• Форма приобретения: возможность покупки через компанию – без НДС
• Владелец: индивидуальный предприниматель, полностью сотрудничает со сделкой
Расположение и доступность
• Бургас – 14 км
• Созополь – 21 км
• Автобусная остановка «Граничар» – 1 км.
• Рыбацкая деревня «Ченгене Скеле» – 500 м
• Пляж Отманли – 500 м
Основные преимущества
• Премиальное расположение в парке Росенец с видом на море
• Утвержденный ПУП и готовый архитектурный проект
• Полностью развитая инфраструктура
• Высота над уровнем моря, гарантирующая вид на море
• Удобный доступ к Бургасу и Созополю
• Гибкая форма сделки – через компанию без обязательств
• Высокий потенциал для развития курортного или жилого поселка
Мы с нетерпением ждем вашего запроса.
Если вы хотите договориться о просмотре интересующего вас объекта недвижимости или посетить один из наших офисов, пожалуйста, свяжитесь с нами. Чтобы договориться о встрече или просмотре, позвоните по указанному в объявлении номеру телефона или отправьте запрос по электронной почте. Наш консультант свяжется с вами по всем необходимым вопросам и подберет удобное для вас время.
Вы ищете подходящую для себя недвижимость?
Не стесняйтесь обращаться к нам и рассказать о своих потребностях и предпочтениях. Наша команда проведёт тщательное исследование рынка, чтобы предложить вам недвижимость, которая точно соответствует вашим критериям. У нас есть исключительное портфолио высококачественных и эксклюзивных домов, доступных только нашим клиентам. Чтобы первыми получать информацию о них, свяжитесь с нами.
Дополнительные услуги
Став нашим ценным клиентом, вы получите право пользоваться услугами нашей опытной юридической команды совершенно бесплатно. Кроме того, мы предлагаем комплексные решения, включая страхование имущества, бесплатные финансовые консультации и выгодные условия финансирования. Мы также предлагаем услуги по перепродаже, аренде и управлению недвижимостью. Мы осуществляем высококачественный ремонт и меблировку через специализированные компании, входящие в нашу группу компаний и являющиеся нашими давними профессиональными партнерами.
Смотр недвижимости
Мы готовы организовать смотр недвижимости в удобное для вас время. Обратитесь к ответственному менеджеру по продажам и проинформируйте его, когда бы Вы хотели приехать на смотровой тур. Мы можем помочь Вам забронировать авиабилет и отель, а также помочь Вам оформить визу и необходимую страховку.
Бронирование недвижимости
Вы можете забронировать недвижимость, заплатив невозмещаемый задаток в размере 2 000 евро наличным платежом, кредитной картой или банковским переводом на фирменный счет компании. После получения задатка недвижимость бронируется, осмотры с другими потенциальными покупателями производиться не будут, и начнется изготовление необходимых документов по оформлению сделки. Пожалуйста, обратитесь к ответственному за данный объект менеджеру по продажам для получения подробной информации относительно процедуры покупки и способов оплаты.
Послепродажное обслуживание
Мы уважаемая компания, за плечами которой многолетний опыт работы в сфере недвижимости. Мы будем сопровождать Вас не только во время покупки, но и после приобретения недвижимости, обеспечивая Вам дополнительный набор услуг с учетом Ваших требовании, для того, чтобы Вы могли насладиться полноценным и спокойным времяпровождением в Болгарии. Услуги, которые мы можем предложить, включают страхование, строительство и ремонт, услуги по меблировке, бухгалтерские и юридическиe услуги, переоформление договоров на электричество, воду, телефон и многое другое.
Прочтите текст на других языках (автоматический перевод)
Месторасположение (приблизительно)
Красным маркером на карте указано приблизительное месторасположение этого объекта недвижимости.
Наши лучшие предложения по продажа в Бургас, Болгария
Недвижимость по району, Бургас
- Недвижимость в р-н«Сарафово«
- Недвижимость в р-н«Меден рудник - зона В«
- Недвижимость в р-н«Хоризонт«
- Недвижимость в р-н«Славейков«
- Недвижимость в р-н«Крайморие«
- Недвижимость в р-н«Меден рудник - зона Д«
- Недвижимость в р-н«Центр«
- Недвижимость в р-н«Братя Миладинови«
- Недвижимость в р-н«Зорница«
- Недвижимость в р-н«Мадика«
Недвижимость по типу, Бургас
- Трёхкомнатные квартиры в Бургас
- Двухкомнатные квартиры в Бургас
- Апартаменты (различные типы) в Бургас
- Дома в Бургас
- Инвестиционные земли в Бургас
- Четырехкомнатные квартиры в Бургас
- Земли под застройку в Бургас
- Квартиры-студии в Бургас
- Сельскохозяйственные земли в Бургас
- Многокомнатные квартиры в Бургас


ORIGINAL: