REF#Kbs 134717 / Трехкомнатная квартира / р-н Дружба 1 / г. София / Софийская область / Болгария / Продажа На карте
Этажность
10
Этаж
4
Лифт
да
Комнаты
3
Спальни
2
Ванные комнаты
2
Туалеты
2

Площадь
123 м2
Жилая площадь
110 м2
Общие части
13 м2
Получен Акт 16

Цена
228 780 €
1 860 €/м2
Получить больше информации или запланировать осмотр
Инфо пакет
Расстояния
Последняя актуализация
17.01.2026 г.
Количество запросов
1 (за последние 30 дней)
Расстояние от объекта до других важных точек
- Центр города: 10 км
- Аэропорт Sofia (SOF): 1 км
- Продуктовый магазин: 900м
- Больница: 1 км
- Школа: 1 км
Вид, открывающийся из недвижимости
- Виды на горы
Отопление
- Отопление кондиционером
Административная информация о предложении
Этот текст переведен с помощью автоматического программного обеспечения, поэтому в нем не исключаются неточности.
Вы можете ознакомиться с текстом на его оригинальном языке или в переводе на другие языки:
Представляем Вам просторную квартиру в новом доме с Актом 16, расположенном в районе Аэропорта София.
Расположение обеспечивает быстрый доступ к центру города, деловым районам и основным транспортным магистралям. Рядом находятся остановки общественного транспорта — автобусов № 10, 8 и 4.
Здание монолитное, заполнено кирпичом Wienerberger, класс энергоэффективности «А», теплоизоляция 10 см, пятикамерные окна с четырехсезонным остеклением, отделка мест общего пользования гранитом, два лифта ORONA, круглосуточная охрана и контролируемый доступ.
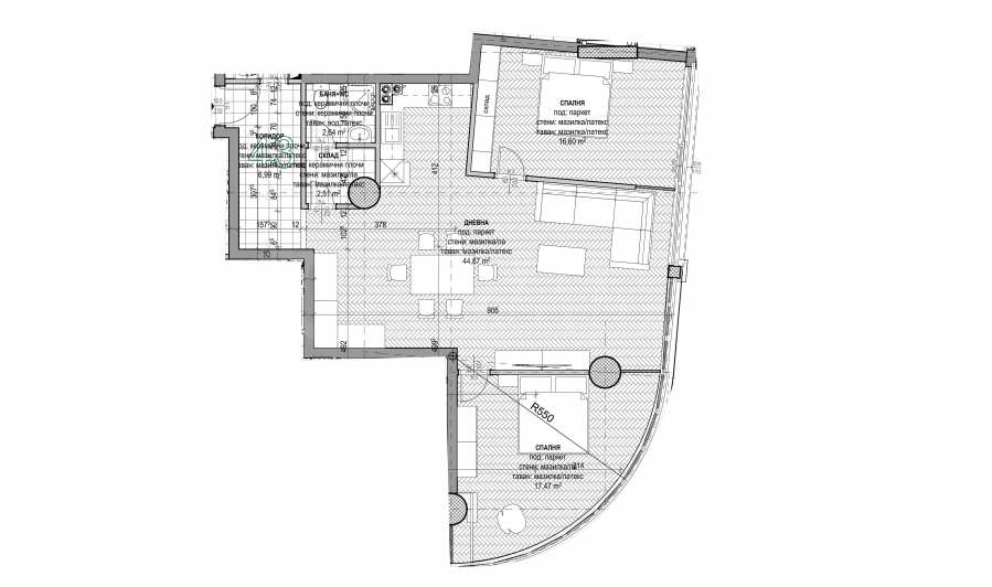
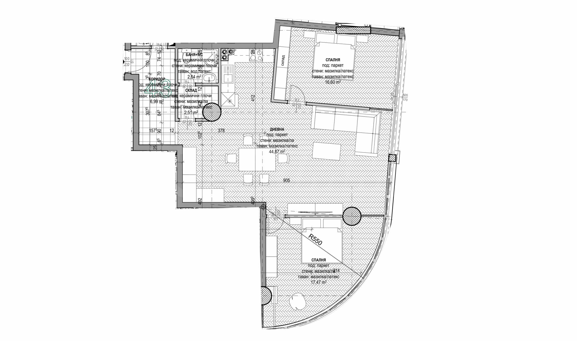
Квартира расположена на четвертом этаже и имеет площадь 109,73 кв. м., распределенную следующим образом:
-прихожая;
-гостиная внушительных размеров 9х4 м. с кухней (3,2х3,2 м.);
-две отдельные комнаты;
-две ванные комнаты
-отдельная влажная комната.
Квартира предлагается в соответствии с болгарскими стандартами (штукатурка и стяжка), с установленной сантехникой и медными трубами для кондиционеров в каждой комнате.
Дополнительные преимущества:
- возможность приобрести крытое парковочное место по цене 25 000 евро;
-два подземных уровня с парковочными местами, подходящими для внедорожников.
Преимущества недвижимости:
• новое здание с Актом 16 и отличными эксплуатационными отличительных обозначенных обозначенных перечисленных упомянутых упомянутых обозначенных указанных характеристиками;
• просторная гостиная с большими размерами;
• возможность крытой парковки;
• близость к аэропорту Софии и основным транспортным магистралям;
• контролируемый доступ и круглосуточная охрана;
• отличное соотношение цены и качества для этого района.
Мы с нетерпением ждем вашего запроса.
Если вы хотите договориться о просмотре интересующего вас объекта недвижимости или посетить один из наших офисов, пожалуйста, свяжитесь с нами. Чтобы договориться о встрече или просмотре, позвоните по указанному в объявлении номеру телефона или отправьте запрос по электронной почте. Наш консультант свяжется с вами по всем необходимым вопросам и подберет удобное для вас время.
Вы ищете подходящую для себя недвижимость?
Не стесняйтесь обращаться к нам и рассказать о своих потребностях и предпочтениях. Наша команда проведёт тщательное исследование рынка, чтобы предложить вам недвижимость, которая точно соответствует вашим критериям. У нас есть исключительное портфолио высококачественных и эксклюзивных домов, доступных только нашим клиентам. Чтобы первыми получать информацию о них, свяжитесь с нами.
Дополнительные услуги
Став нашим ценным клиентом, вы получите право пользоваться услугами нашей опытной юридической команды совершенно бесплатно. Кроме того, мы предлагаем комплексные решения, включая страхование имущества, бесплатные финансовые консультации и выгодные условия финансирования. Мы также предлагаем услуги по перепродаже, аренде и управлению недвижимостью. Мы осуществляем высококачественный ремонт и меблировку через специализированные компании, входящие в нашу группу компаний и являющиеся нашими давними профессиональными партнерами.
Смотр недвижимости
Мы готовы организовать смотр недвижимости в удобное для вас время. Обратитесь к ответственному менеджеру по продажам и проинформируйте его, когда бы Вы хотели приехать на смотровой тур. Мы можем помочь Вам забронировать авиабилет и отель, а также помочь Вам оформить визу и необходимую страховку.
Бронирование недвижимости
Вы можете забронировать недвижимость, заплатив невозмещаемый задаток в размере 2 000 евро наличным платежом, кредитной картой или банковским переводом на фирменный счет компании. После получения задатка недвижимость бронируется, осмотры с другими потенциальными покупателями производиться не будут, и начнется изготовление необходимых документов по оформлению сделки. Пожалуйста, обратитесь к ответственному за данный объект менеджеру по продажам для получения подробной информации относительно процедуры покупки и способов оплаты.
Послепродажное обслуживание
Мы уважаемая компания, за плечами которой многолетний опыт работы в сфере недвижимости. Мы будем сопровождать Вас не только во время покупки, но и после приобретения недвижимости, обеспечивая Вам дополнительный набор услуг с учетом Ваших требовании, для того, чтобы Вы могли насладиться полноценным и спокойным времяпровождением в Болгарии. Услуги, которые мы можем предложить, включают страхование, строительство и ремонт, услуги по меблировке, бухгалтерские и юридическиe услуги, переоформление договоров на электричество, воду, телефон и многое другое.
Расположение обеспечивает быстрый доступ к центру города, деловым районам и основным транспортным магистралям. Рядом находятся остановки общественного транспорта — автобусов № 10, 8 и 4.
Здание монолитное, заполнено кирпичом Wienerberger, класс энергоэффективности «А», теплоизоляция 10 см, пятикамерные окна с четырехсезонным остеклением, отделка мест общего пользования гранитом, два лифта ORONA, круглосуточная охрана и контролируемый доступ.
Квартира расположена на четвертом этаже и имеет площадь 109,73 кв. м., распределенную следующим образом:
-прихожая;
-гостиная внушительных размеров 9х4 м. с кухней (3,2х3,2 м.);
-две отдельные комнаты;
-две ванные комнаты
-отдельная влажная комната.
Квартира предлагается в соответствии с болгарскими стандартами (штукатурка и стяжка), с установленной сантехникой и медными трубами для кондиционеров в каждой комнате.
Дополнительные преимущества:
- возможность приобрести крытое парковочное место по цене 25 000 евро;
-два подземных уровня с парковочными местами, подходящими для внедорожников.
Преимущества недвижимости:
• новое здание с Актом 16 и отличными эксплуатационными отличительных обозначенных обозначенных перечисленных упомянутых упомянутых обозначенных указанных характеристиками;
• просторная гостиная с большими размерами;
• возможность крытой парковки;
• близость к аэропорту Софии и основным транспортным магистралям;
• контролируемый доступ и круглосуточная охрана;
• отличное соотношение цены и качества для этого района.
Мы с нетерпением ждем вашего запроса.
Если вы хотите договориться о просмотре интересующего вас объекта недвижимости или посетить один из наших офисов, пожалуйста, свяжитесь с нами. Чтобы договориться о встрече или просмотре, позвоните по указанному в объявлении номеру телефона или отправьте запрос по электронной почте. Наш консультант свяжется с вами по всем необходимым вопросам и подберет удобное для вас время.
Вы ищете подходящую для себя недвижимость?
Не стесняйтесь обращаться к нам и рассказать о своих потребностях и предпочтениях. Наша команда проведёт тщательное исследование рынка, чтобы предложить вам недвижимость, которая точно соответствует вашим критериям. У нас есть исключительное портфолио высококачественных и эксклюзивных домов, доступных только нашим клиентам. Чтобы первыми получать информацию о них, свяжитесь с нами.
Дополнительные услуги
Став нашим ценным клиентом, вы получите право пользоваться услугами нашей опытной юридической команды совершенно бесплатно. Кроме того, мы предлагаем комплексные решения, включая страхование имущества, бесплатные финансовые консультации и выгодные условия финансирования. Мы также предлагаем услуги по перепродаже, аренде и управлению недвижимостью. Мы осуществляем высококачественный ремонт и меблировку через специализированные компании, входящие в нашу группу компаний и являющиеся нашими давними профессиональными партнерами.
Смотр недвижимости
Мы готовы организовать смотр недвижимости в удобное для вас время. Обратитесь к ответственному менеджеру по продажам и проинформируйте его, когда бы Вы хотели приехать на смотровой тур. Мы можем помочь Вам забронировать авиабилет и отель, а также помочь Вам оформить визу и необходимую страховку.
Бронирование недвижимости
Вы можете забронировать недвижимость, заплатив невозмещаемый задаток в размере 2 000 евро наличным платежом, кредитной картой или банковским переводом на фирменный счет компании. После получения задатка недвижимость бронируется, осмотры с другими потенциальными покупателями производиться не будут, и начнется изготовление необходимых документов по оформлению сделки. Пожалуйста, обратитесь к ответственному за данный объект менеджеру по продажам для получения подробной информации относительно процедуры покупки и способов оплаты.
Послепродажное обслуживание
Мы уважаемая компания, за плечами которой многолетний опыт работы в сфере недвижимости. Мы будем сопровождать Вас не только во время покупки, но и после приобретения недвижимости, обеспечивая Вам дополнительный набор услуг с учетом Ваших требовании, для того, чтобы Вы могли насладиться полноценным и спокойным времяпровождением в Болгарии. Услуги, которые мы можем предложить, включают страхование, строительство и ремонт, услуги по меблировке, бухгалтерские и юридическиe услуги, переоформление договоров на электричество, воду, телефон и многое другое.
Прочтите текст на других языках (автоматический перевод)
Месторасположение (приблизительно)
Красным маркером на карте указано приблизительное месторасположение этого объекта недвижимости.
Наши лучшие предложения по продажа в София, Болгария
Недвижимость по району, София
- Недвижимость в р-н«Малинова Долина«
- Недвижимость в р-н«Крыстова Вада«
- Недвижимость в р-н«Манастирски Ливади- Восток«
- Недвижимость в р-н«Центр«
- Недвижимость в р-н«Бояна«
- Недвижимость в р-н«Витоша«
- Недвижимость в р-н«Драгалевци«
- Недвижимость в р-н«Лозенец«
- Недвижимость в р-н«Младост 3«
- Недвижимость в р-н«Младост 4«
Недвижимость по типу, София
- Трёхкомнатные квартиры в София
- Двухкомнатные квартиры в София
- Четырехкомнатные квартиры в София
- Апартаменты (различные типы) в София
- Дома в София
- Офисы в София
- Магазины в София
- Многокомнатные квартиры в София
- Земли под застройку в София
- Пентхаусы в двух уровнях в София


ORIGINAL: