Класс здания/комплекса
Бизнес
Этажность
6
Этаж
5
Лифт
да
Комнаты
3
Спальни
2
Ванные комнаты
2
Балконы (Террасы)
1

Площадь
129.99 м2
Жилая площадь
112.17 м2
Общие части
17.82 м2
Этап строительства
В процессе строительства
Сдача планируется
Июль 2027

Цена
285 978 €
(без НДС)
2 200 €/м2
(без НДС)
Получить больше информации или запланировать осмотр
Инфо пакет
Состояние
по болгарскому ГОСТу (готово для отделочных работ)
Меблировка
Отопление
Мультисплит система / Газовая система отопления
Расстояния
Последняя актуализация
05.01.2026 г.
Количество запросов
1 (за последние 30 дней)
Расстояние от объекта до других важных точек
- Центр города: 5 км
- Аэропорт Sofia (SOF): 8.2 км
Отопление
- Газовая система отопления
- Мультисплит система
Административная информация о предложении
ГАЗИФИКАЦИЯ, ЭЛЕКТРИЧЕСТВО
- Отопление на газу
- Электричество
ВОДОСНАБЖЕНИЕ
- Центральное водоснабжение
САНУЗЛЫ И ПОДСОБНЫЕ ПОМЕЩЕНИЯ
- Ванная комната с туалетом
- Кладовая
- Терраса
ИЗОЛЯЦИИ И РАБОТЫ ПО ОТДЕЛКЕ
- Без меблировки
- Внешняя изоляция
- Тройной стеклопакет
УДОБСТВА В ЗДАНИИ
- Лифт
Этот текст переведен с помощью автоматического программного обеспечения, поэтому в нем не исключаются неточности.
Вы можете ознакомиться с текстом на его оригинальном языке или в переводе на другие языки:
Мы эксклюзивно представляем на продажу двухкомнатную квартиру в современном новострое на бульваре Симеоновско Шосе, главной транспортной артерии Софии, напрямую соединяющей центр города с районом Симеоново. Дом расположен в непосредственной близости от парка Ловен, недавно построенного бульвара Филиппа Кутева, остановки общественного транспорта, магазинов, детских садов и школ.
Начало строительства - сентябрь 2025 г. Ожидаемый Акт 16 - лето 2027 г.
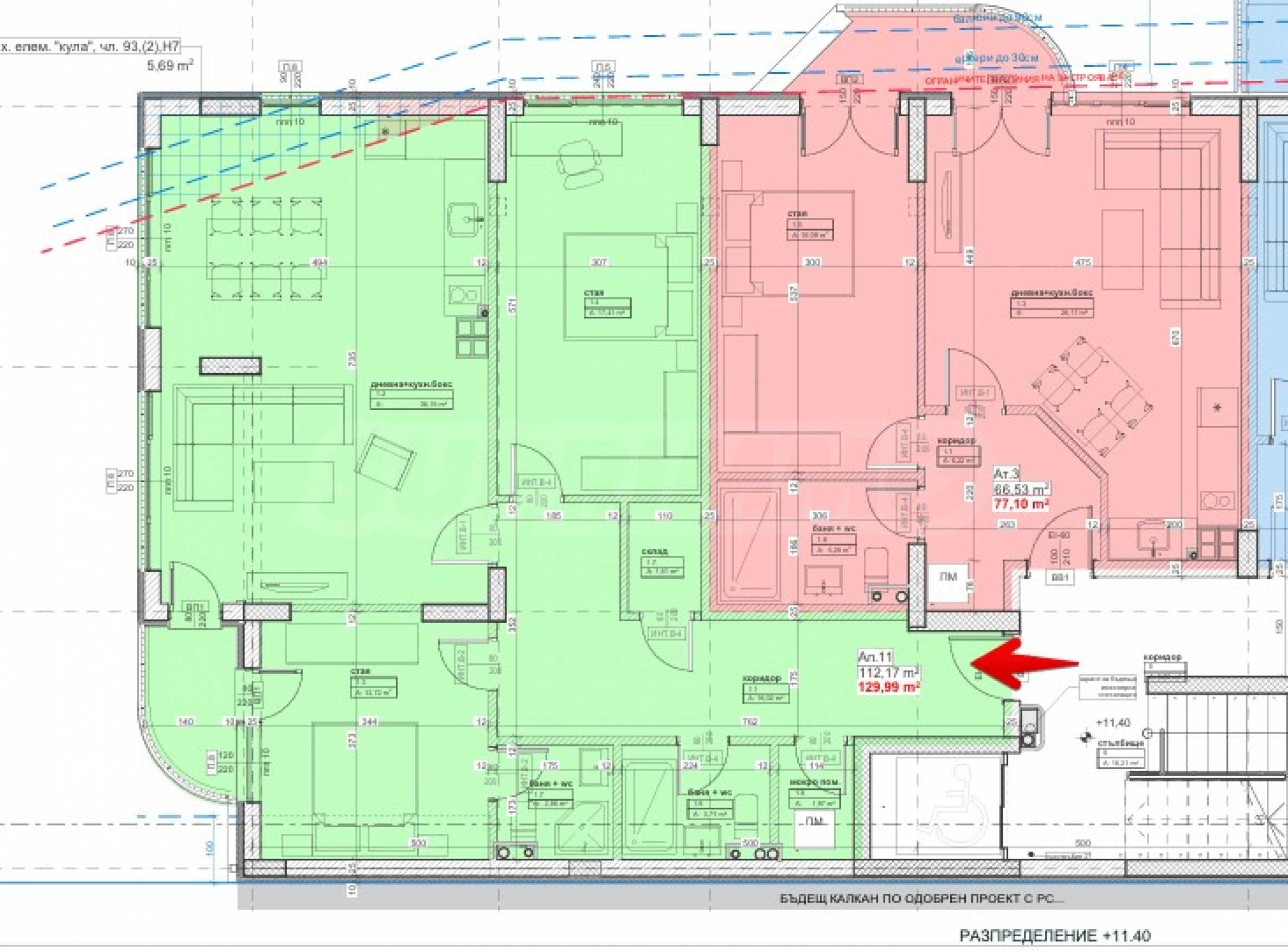
Квартира расположена на 5 этаже и имеет общую площадь 129,99 кв. метров., жилую – 112,17 кв. метров. Состоит из прихожей/коридора, ванной комнаты с туалетом, кладовой, подсобного помещения, гостиной с кухней и столовой, террасы, спальни с собственной ванной комнатой и выходом на террасу из гостиной, второй спальни. Квартира предлагается в степени готовности согласно BDS. Отопление – газовое, также установлена встроенная система кондиционирования воздуха для мульти-сплит-системы.
Есть возможность приобрести парковочные места и гаражи.
Указанная цена не включает НДС.
О здании
Здание представляет собой бутик-отель с 9 квартирами, магазином на первом этаже, 4 открытыми парковочными местами, 4 подземными парковочными местами и 11 гаражами.
Здание распределено на 6 уровнях, включая подземный уровень с парковочными местами и гаражами, магазин на первом этаже и пять жилых этажей с двух- и трехкомнатными квартирами.
Планируется использование самых современных технологий в сочетании с высококлассными материалами и оснащением ведущих мировых производителей.
Технические перечисленных упомянутых характеристики:
• Крыши – утеплены каменной ватой толщиной 15 см и гидроизолированы мембраной ТПО или ПВХ, по краям отделаны пластифицированным листовым металлом;
• Фасады – утеплены утеплителем EPS 10 см толщиной 10 см; системный пакет Baumit с финишным покрытием из силикатной штукатурки в цвет, декор Etalbond или HPL, частично на фасадах натуральный мрамор;
• Террасы с гранитной плиткой и натуральным гранитным подоконником по краю;
• Лестница – ступени, пол – натуральный гранит, стены оштукатурены, зашпаклеваны, окрашены латексом. Перила алюминиевые – типа «Робот», цвет «Антрацит». Установлены кнопки управления, датчики движения и потолочные светильники;
• Выполнены сантехнические и электрические работы, установлен домофон с видеокамерой. Проведено видеонаблюдение на уровне первого этажа во всех подъездах. Подключены инсталляционные пакеты для подключения интернет-провайдеров.
• Окна – пятикамерный профиль Salamander высшего класса, с двухкамерными стеклопакетами 4+4+6, в том числе с низкоэмиссионным стеклом;
• Входная металлическая дверь межкомнатная с декоративным покрытием HPL 70 мм. Утеплена жесткой ватой, металлические петли, многоточечный замок;
• Гаражи – оштукатурены и покрашены стены и потолки. Установлены гаражные ворота с электроприводом. Установлены собственные электрощиты;
• Балконные ограждения – алюминиевые с частичным триплексным остеклением, с полной отделкой, выполненные по проекту;
• Лифт – Орона (Испания), импортер и обслуживание UNIKEN.
Для инвестора
Строительная компания специализируется на строительстве зданий и сооружений, дорожной инфраструктуры, всех видах отделочных работ, строительстве «под ключ», реконструкции общественных и жилых зданий, строительно-ремонтных работах, внутренних и наружных электро- и сантехнических работах, вертикальной планировке зданий, реставрации, восстановлении, утеплении и ремонте старых зданий.
Мы с нетерпением ждем вашего запроса.
Если вы хотите договориться о просмотре интересующего вас объекта недвижимости или посетить один из наших офисов, пожалуйста, свяжитесь с нами. Чтобы договориться о встрече или просмотре, позвоните по указанному в объявлении номеру телефона или отправьте запрос по электронной почте. Наш консультант свяжется с вами по всем необходимым вопросам и подберет удобное для вас время.
Вы ищете подходящую для себя недвижимость?
Не стесняйтесь обращаться к нам и рассказать о своих потребностях и предпочтениях. Наша команда проведёт тщательное исследование рынка, чтобы предложить вам недвижимость, которая точно соответствует вашим критериям. У нас есть исключительное портфолио высококачественных и эксклюзивных домов, доступных только нашим клиентам. Чтобы первыми получать информацию о них, свяжитесь с нами.
Дополнительные услуги
Став нашим ценным клиентом, вы получите право пользоваться услугами нашей опытной юридической команды совершенно бесплатно. Кроме того, мы предлагаем комплексные решения, включая страхование имущества, бесплатные финансовые консультации и выгодные условия финансирования. Мы также предлагаем услуги по перепродаже, аренде и управлению недвижимостью. Мы осуществляем высококачественный ремонт и меблировку через специализированные компании, входящие в нашу группу компаний и являющиеся нашими давними профессиональными партнерами.
Смотр недвижимости
Мы готовы организовать смотр недвижимости в удобное для вас время. Обратитесь к ответственному менеджеру по продажам и проинформируйте его, когда бы Вы хотели приехать на смотровой тур. Мы можем помочь Вам забронировать авиабилет и отель, а также помочь Вам оформить визу и необходимую страховку.
Бронирование недвижимости
Вы можете забронировать недвижимость, заплатив невозмещаемый задаток в размере 2 000 евро наличным платежом, кредитной картой или банковским переводом на фирменный счет компании. После получения задатка недвижимость бронируется, осмотры с другими потенциальными покупателями производиться не будут, и начнется изготовление необходимых документов по оформлению сделки. Пожалуйста, обратитесь к ответственному за данный объект менеджеру по продажам для получения подробной информации относительно процедуры покупки и способов оплаты.
Послепродажное обслуживание
Мы уважаемая компания, за плечами которой многолетний опыт работы в сфере недвижимости. Мы будем сопровождать Вас не только во время покупки, но и после приобретения недвижимости, обеспечивая Вам дополнительный набор услуг с учетом Ваших требовании, для того, чтобы Вы могли насладиться полноценным и спокойным времяпровождением в Болгарии. Услуги, которые мы можем предложить, включают страхование, строительство и ремонт, услуги по меблировке, бухгалтерские и юридическиe услуги, переоформление договоров на электричество, воду, телефон и многое другое.
Начало строительства - сентябрь 2025 г. Ожидаемый Акт 16 - лето 2027 г.
Квартира расположена на 5 этаже и имеет общую площадь 129,99 кв. метров., жилую – 112,17 кв. метров. Состоит из прихожей/коридора, ванной комнаты с туалетом, кладовой, подсобного помещения, гостиной с кухней и столовой, террасы, спальни с собственной ванной комнатой и выходом на террасу из гостиной, второй спальни. Квартира предлагается в степени готовности согласно BDS. Отопление – газовое, также установлена встроенная система кондиционирования воздуха для мульти-сплит-системы.
Есть возможность приобрести парковочные места и гаражи.
Указанная цена не включает НДС.
О здании
Здание представляет собой бутик-отель с 9 квартирами, магазином на первом этаже, 4 открытыми парковочными местами, 4 подземными парковочными местами и 11 гаражами.
Здание распределено на 6 уровнях, включая подземный уровень с парковочными местами и гаражами, магазин на первом этаже и пять жилых этажей с двух- и трехкомнатными квартирами.
Планируется использование самых современных технологий в сочетании с высококлассными материалами и оснащением ведущих мировых производителей.
Технические перечисленных упомянутых характеристики:
• Крыши – утеплены каменной ватой толщиной 15 см и гидроизолированы мембраной ТПО или ПВХ, по краям отделаны пластифицированным листовым металлом;
• Фасады – утеплены утеплителем EPS 10 см толщиной 10 см; системный пакет Baumit с финишным покрытием из силикатной штукатурки в цвет, декор Etalbond или HPL, частично на фасадах натуральный мрамор;
• Террасы с гранитной плиткой и натуральным гранитным подоконником по краю;
• Лестница – ступени, пол – натуральный гранит, стены оштукатурены, зашпаклеваны, окрашены латексом. Перила алюминиевые – типа «Робот», цвет «Антрацит». Установлены кнопки управления, датчики движения и потолочные светильники;
• Выполнены сантехнические и электрические работы, установлен домофон с видеокамерой. Проведено видеонаблюдение на уровне первого этажа во всех подъездах. Подключены инсталляционные пакеты для подключения интернет-провайдеров.
• Окна – пятикамерный профиль Salamander высшего класса, с двухкамерными стеклопакетами 4+4+6, в том числе с низкоэмиссионным стеклом;
• Входная металлическая дверь межкомнатная с декоративным покрытием HPL 70 мм. Утеплена жесткой ватой, металлические петли, многоточечный замок;
• Гаражи – оштукатурены и покрашены стены и потолки. Установлены гаражные ворота с электроприводом. Установлены собственные электрощиты;
• Балконные ограждения – алюминиевые с частичным триплексным остеклением, с полной отделкой, выполненные по проекту;
• Лифт – Орона (Испания), импортер и обслуживание UNIKEN.
Для инвестора
Строительная компания специализируется на строительстве зданий и сооружений, дорожной инфраструктуры, всех видах отделочных работ, строительстве «под ключ», реконструкции общественных и жилых зданий, строительно-ремонтных работах, внутренних и наружных электро- и сантехнических работах, вертикальной планировке зданий, реставрации, восстановлении, утеплении и ремонте старых зданий.
Мы с нетерпением ждем вашего запроса.
Если вы хотите договориться о просмотре интересующего вас объекта недвижимости или посетить один из наших офисов, пожалуйста, свяжитесь с нами. Чтобы договориться о встрече или просмотре, позвоните по указанному в объявлении номеру телефона или отправьте запрос по электронной почте. Наш консультант свяжется с вами по всем необходимым вопросам и подберет удобное для вас время.
Вы ищете подходящую для себя недвижимость?
Не стесняйтесь обращаться к нам и рассказать о своих потребностях и предпочтениях. Наша команда проведёт тщательное исследование рынка, чтобы предложить вам недвижимость, которая точно соответствует вашим критериям. У нас есть исключительное портфолио высококачественных и эксклюзивных домов, доступных только нашим клиентам. Чтобы первыми получать информацию о них, свяжитесь с нами.
Дополнительные услуги
Став нашим ценным клиентом, вы получите право пользоваться услугами нашей опытной юридической команды совершенно бесплатно. Кроме того, мы предлагаем комплексные решения, включая страхование имущества, бесплатные финансовые консультации и выгодные условия финансирования. Мы также предлагаем услуги по перепродаже, аренде и управлению недвижимостью. Мы осуществляем высококачественный ремонт и меблировку через специализированные компании, входящие в нашу группу компаний и являющиеся нашими давними профессиональными партнерами.
Смотр недвижимости
Мы готовы организовать смотр недвижимости в удобное для вас время. Обратитесь к ответственному менеджеру по продажам и проинформируйте его, когда бы Вы хотели приехать на смотровой тур. Мы можем помочь Вам забронировать авиабилет и отель, а также помочь Вам оформить визу и необходимую страховку.
Бронирование недвижимости
Вы можете забронировать недвижимость, заплатив невозмещаемый задаток в размере 2 000 евро наличным платежом, кредитной картой или банковским переводом на фирменный счет компании. После получения задатка недвижимость бронируется, осмотры с другими потенциальными покупателями производиться не будут, и начнется изготовление необходимых документов по оформлению сделки. Пожалуйста, обратитесь к ответственному за данный объект менеджеру по продажам для получения подробной информации относительно процедуры покупки и способов оплаты.
Послепродажное обслуживание
Мы уважаемая компания, за плечами которой многолетний опыт работы в сфере недвижимости. Мы будем сопровождать Вас не только во время покупки, но и после приобретения недвижимости, обеспечивая Вам дополнительный набор услуг с учетом Ваших требовании, для того, чтобы Вы могли насладиться полноценным и спокойным времяпровождением в Болгарии. Услуги, которые мы можем предложить, включают страхование, строительство и ремонт, услуги по меблировке, бухгалтерские и юридическиe услуги, переоформление договоров на электричество, воду, телефон и многое другое.
Прочтите текст на других языках (автоматический перевод)
Месторасположение (приблизительно)
Красным маркером на карте указано приблизительное месторасположение этого объекта недвижимости.
Наши лучшие предложения по продажа в София, Болгария
Недвижимость по району, София
- Недвижимость в р-н«Малинова Долина«
- Недвижимость в р-н«Крыстова Вада«
- Недвижимость в р-н«Манастирски Ливади- Восток«
- Недвижимость в р-н«Центр«
- Недвижимость в р-н«Бояна«
- Недвижимость в р-н«Витоша«
- Недвижимость в р-н«Драгалевци«
- Недвижимость в р-н«Лозенец«
- Недвижимость в р-н«Младост 3«
- Недвижимость в р-н«Младост 4«
Недвижимость по типу, София
- Трёхкомнатные квартиры в София
- Двухкомнатные квартиры в София
- Четырехкомнатные квартиры в София
- Апартаменты (различные типы) в София
- Дома в София
- Офисы в София
- Магазины в София
- Многокомнатные квартиры в София
- Земли под застройку в София
- Пентхаусы в двух уровнях в София


ORIGINAL: