Класс здания/комплекса
Бизнес плюс
Этажность
5
Этаж
3
Лифт
да
Комнаты
2
Спальни
1
Ванные комнаты
1
Места на крытой парковке
1
Балконы (Террасы)
1
Подвал
да
Подвал (кв.м)
4 м2

Площадь
91 м2
Жилая площадь
72 м2
Общие части
19 м2
Получен Акт 16

Цена
333 000 €
3 659 €/м2
Получить больше информации или запланировать осмотр
Инфо пакет
Состояние
отличное
Меблировка
Ванные комнаты
Оборудованная ванная комната
Отопление
Отопление кондиционером / Газовая система отопления
Расстояния
Последняя актуализация
06.01.2026 г.
Количество запросов
1 (за последние 30 дней)
Расстояние от объекта до других важных точек
- Центр города: 8 км
- Аэропорт Sofia (SOF): 17 км
Вид, открывающийся из недвижимости
- Виды на внутренний двор
- Виды на город
- Виды на горы
- Виды на лес
Строительство
- Высокие потолки (выше 2,50 м)
Отопление
- Газовая система отопления
- Отопление кондиционером
Кондиционирование
- Система кондиционирования
Административная информация о предложении
ГАЗИФИКАЦИЯ, ЭЛЕКТРИЧЕСТВО
- Отопление на газу
- Электричество
ВОДОСНАБЖЕНИЕ
- Вода
КАНАЛИЗАЦИЯ
- Канализация
САНУЗЛЫ И ПОДСОБНЫЕ ПОМЕЩЕНИЯ
- Ванная комната с туалетом
МЕБЛИРОВКА И ОБОРУДОВАНИЕ
- Встроенная кухня
- Мебель
- Оборудованная ванная комната
УДОБСТВА В ЗДАНИИ
- Комплекс закрытого типа
- Лифт
- Общие части с отделкой люкс
Этот текст переведен с помощью автоматического программного обеспечения, поэтому в нем не исключаются неточности.
Вы можете ознакомиться с текстом на его оригинальном языке или в переводе на другие языки:
Представляем вашему вниманию стильную однокомнатную квартиру, находящуюся в стадии строительства, которая будет передана покупателю полностью меблированной высококачественной меблировкую и оборудованием. Квартира расположена в закрытом жилом комплексе FOHAR – современном архитектурном проекте в престижном районе Бояна столицы. Сочетая в себе живописную природу, панорамные виды и быстрый доступ к центру Софии, эта квартира предлагает идеально сбалансированное городское жилье.
FOHAR предлагает развитую инфраструктуру: зеленые зоны, детские площадки, фитнес-центр, ресторан и круглосуточную охрану, а также системы управления домом, готовые к использованию в системе «умный дом». Комплекс имеет статус объекта, соответствующего требованиям Закона № 16.
Проект удостоен награды в номинации «Выдающийся архитектурный образ и трансформация» в национальном конкурсе «Здание года 2025».
Об квартире
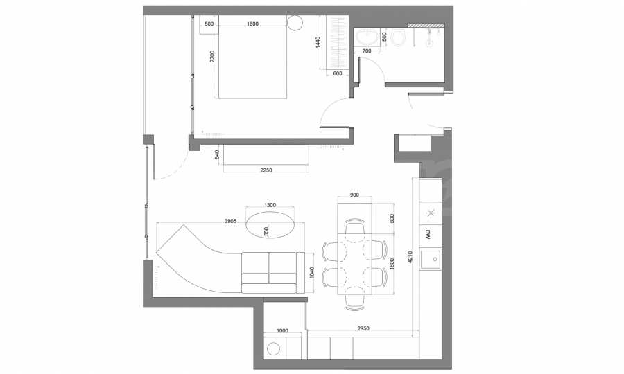
Функциональная, светлая и просторная двухкомнатная квартира имеет полезную площадь 71,99 кв. м и общую площадь 91,33 кв. м. Квартира расположена на антресольном этаже, выходит на юг и благодаря высоким потолкам и панорамным окнам с видом на горы создает впечатляющее ощущение простора, комфорта и уюта.
Квартира включает в себя просторную гостиную с кухней, уютную спальню с выходом на лоджию, ванную комнату и прихожую. Кроме того, в собственности имеется подвал и собственное парковочное место.
Интерьер выполнен с использованием мебели и освещения от ведущих итальянских брендов, таких как Ditre Italia, Calligaris, Cattelan Italia, Flos, а также кухни Pedini, оборудованной бытовой техникой Bosch. Каждая зона дома тщательно спроектирована с учетом функциональности и эстетики.
Просторная и оптимизированная планировка:
• Гостиная с кухней (37,8 кв. м) – большое, светлое помещение с южной ориентацией, объединяющее кухню, столовую и зону отдыха. Пространство разделено на зоны правильной формы.
• Спальня (13,48 кв. м) – уютная прямоугольная комната, в которой поместится большая кровать и шкаф. Она имеет прямой выход на южную лоджию площадью 3,82 кв. м, откуда открывается беспрепятственный панорамный вид на горы.
• Ванная комната (3,81 кв. м) - компактная, хорошо организованная ванная комната с местом для раковины и душевой зоны.
• Коридор (3,87 кв. м)
• Дополнительно – подвал (4,86 кв. м) – сухое, утепленное помещение прямой формы с дверью типа «конюшня» и высоким потолком. Подходит для хранения багажа, велосипедов, сезонных вещей и т. д.
Объект недвижимости предлагает возможность приобрести подземное парковочное место за 88 012 левов (45 000 евро). Парковочное место просторное, удобное как для парковки вперед, так и назад. Оно обеспечивает легкий доступ и маневренность.
Расположение
Расположение у подножия горы Витоша является престижным и предпочтительным для проживания как для молодежи, так и для семей с детьми. Близость к бульвару Болгария и кольцевой дороге обеспечивает быстрый доступ к удобствам центра города, а близость к природному парку Витоша гарантирует здоровую среду обитания с чистым воздухом и прекрасными природными видами.
Мы с нетерпением ждём вашего запроса.
Если вы хотите договориться о просмотре интересующего вас объекта недвижимости или посетить один из наших офисов, пожалуйста, свяжитесь с нами. Чтобы согласовать день и время встречи или просмотра, вы можете позвонить по номеру телефона, указанному в объявлении, или отправить запрос по электронной почте. Наш консультант поможет вам со всеми необходимыми деталями и согласует удобное для вас время.
Вы ищете подходящую недвижимость?
Не стесняйтесь обращаться к нам и рассказывать о ваших потребностях и предпочтениях. Наша команда проведет тщательное исследование рынка, чтобы предложить вам объекты недвижимости, точно соответствующие вашим критериям. У нас есть исключительное портфолио высококачественных и эксклюзивных домов, доступных только нашим клиентам. Чтобы первыми получать информацию о них – свяжитесь с нами.
Дополнительные услуги
Как ценный клиент нашей компании, вы получите привилегию пользоваться услугами нашей опытной юридической команды совершенно бесплатно. Кроме того, мы предлагаем комплексные решения, включая страхование недвижимости, бесплатные финансовые консультации, а также выгодные условия финансирования. Наши услуги также распространяются на сферу перепродажи, аренды и управления недвижимостью. Мы предоставляем высококачественные услуги по ремонту и меблировке через специализированные компании, входящие в нашу корпоративную группу и являющиеся нашими давними профессиональными партнерами.
Смотр недвижимости
Мы готовы организовать смотр недвижимости в удобное для вас время. Обратитесь к ответственному менеджеру по продажам и проинформируйте его, когда бы Вы хотели приехать на смотровой тур. Мы можем помочь Вам забронировать авиабилет и отель, а также помочь Вам оформить визу и необходимую страховку.
Бронирование недвижимости
Вы можете забронировать недвижимость, заплатив невозмещаемый задаток в размере 2 000 евро наличным платежом, кредитной картой или банковским переводом на фирменный счет компании. После получения задатка недвижимость бронируется, осмотры с другими потенциальными покупателями производиться не будут, и начнется изготовление необходимых документов по оформлению сделки. Пожалуйста, обратитесь к ответственному за данный объект менеджеру по продажам для получения подробной информации относительно процедуры покупки и способов оплаты.
Послепродажное обслуживание
Мы уважаемая компания, за плечами которой многолетний опыт работы в сфере недвижимости. Мы будем сопровождать Вас не только во время покупки, но и после приобретения недвижимости, обеспечивая Вам дополнительный набор услуг с учетом Ваших требовании, для того, чтобы Вы могли насладиться полноценным и спокойным времяпровождением в Болгарии. Услуги, которые мы можем предложить, включают страхование, строительство и ремонт, услуги по меблировке, бухгалтерские и юридическиe услуги, переоформление договоров на электричество, воду, телефон и многое другое.
FOHAR предлагает развитую инфраструктуру: зеленые зоны, детские площадки, фитнес-центр, ресторан и круглосуточную охрану, а также системы управления домом, готовые к использованию в системе «умный дом». Комплекс имеет статус объекта, соответствующего требованиям Закона № 16.
Проект удостоен награды в номинации «Выдающийся архитектурный образ и трансформация» в национальном конкурсе «Здание года 2025».
Об квартире
Функциональная, светлая и просторная двухкомнатная квартира имеет полезную площадь 71,99 кв. м и общую площадь 91,33 кв. м. Квартира расположена на антресольном этаже, выходит на юг и благодаря высоким потолкам и панорамным окнам с видом на горы создает впечатляющее ощущение простора, комфорта и уюта.
Квартира включает в себя просторную гостиную с кухней, уютную спальню с выходом на лоджию, ванную комнату и прихожую. Кроме того, в собственности имеется подвал и собственное парковочное место.
Интерьер выполнен с использованием мебели и освещения от ведущих итальянских брендов, таких как Ditre Italia, Calligaris, Cattelan Italia, Flos, а также кухни Pedini, оборудованной бытовой техникой Bosch. Каждая зона дома тщательно спроектирована с учетом функциональности и эстетики.
Просторная и оптимизированная планировка:
• Гостиная с кухней (37,8 кв. м) – большое, светлое помещение с южной ориентацией, объединяющее кухню, столовую и зону отдыха. Пространство разделено на зоны правильной формы.
• Спальня (13,48 кв. м) – уютная прямоугольная комната, в которой поместится большая кровать и шкаф. Она имеет прямой выход на южную лоджию площадью 3,82 кв. м, откуда открывается беспрепятственный панорамный вид на горы.
• Ванная комната (3,81 кв. м) - компактная, хорошо организованная ванная комната с местом для раковины и душевой зоны.
• Коридор (3,87 кв. м)
• Дополнительно – подвал (4,86 кв. м) – сухое, утепленное помещение прямой формы с дверью типа «конюшня» и высоким потолком. Подходит для хранения багажа, велосипедов, сезонных вещей и т. д.
Объект недвижимости предлагает возможность приобрести подземное парковочное место за 88 012 левов (45 000 евро). Парковочное место просторное, удобное как для парковки вперед, так и назад. Оно обеспечивает легкий доступ и маневренность.
Расположение
Расположение у подножия горы Витоша является престижным и предпочтительным для проживания как для молодежи, так и для семей с детьми. Близость к бульвару Болгария и кольцевой дороге обеспечивает быстрый доступ к удобствам центра города, а близость к природному парку Витоша гарантирует здоровую среду обитания с чистым воздухом и прекрасными природными видами.
Мы с нетерпением ждём вашего запроса.
Если вы хотите договориться о просмотре интересующего вас объекта недвижимости или посетить один из наших офисов, пожалуйста, свяжитесь с нами. Чтобы согласовать день и время встречи или просмотра, вы можете позвонить по номеру телефона, указанному в объявлении, или отправить запрос по электронной почте. Наш консультант поможет вам со всеми необходимыми деталями и согласует удобное для вас время.
Вы ищете подходящую недвижимость?
Не стесняйтесь обращаться к нам и рассказывать о ваших потребностях и предпочтениях. Наша команда проведет тщательное исследование рынка, чтобы предложить вам объекты недвижимости, точно соответствующие вашим критериям. У нас есть исключительное портфолио высококачественных и эксклюзивных домов, доступных только нашим клиентам. Чтобы первыми получать информацию о них – свяжитесь с нами.
Дополнительные услуги
Как ценный клиент нашей компании, вы получите привилегию пользоваться услугами нашей опытной юридической команды совершенно бесплатно. Кроме того, мы предлагаем комплексные решения, включая страхование недвижимости, бесплатные финансовые консультации, а также выгодные условия финансирования. Наши услуги также распространяются на сферу перепродажи, аренды и управления недвижимостью. Мы предоставляем высококачественные услуги по ремонту и меблировке через специализированные компании, входящие в нашу корпоративную группу и являющиеся нашими давними профессиональными партнерами.
Смотр недвижимости
Мы готовы организовать смотр недвижимости в удобное для вас время. Обратитесь к ответственному менеджеру по продажам и проинформируйте его, когда бы Вы хотели приехать на смотровой тур. Мы можем помочь Вам забронировать авиабилет и отель, а также помочь Вам оформить визу и необходимую страховку.
Бронирование недвижимости
Вы можете забронировать недвижимость, заплатив невозмещаемый задаток в размере 2 000 евро наличным платежом, кредитной картой или банковским переводом на фирменный счет компании. После получения задатка недвижимость бронируется, осмотры с другими потенциальными покупателями производиться не будут, и начнется изготовление необходимых документов по оформлению сделки. Пожалуйста, обратитесь к ответственному за данный объект менеджеру по продажам для получения подробной информации относительно процедуры покупки и способов оплаты.
Послепродажное обслуживание
Мы уважаемая компания, за плечами которой многолетний опыт работы в сфере недвижимости. Мы будем сопровождать Вас не только во время покупки, но и после приобретения недвижимости, обеспечивая Вам дополнительный набор услуг с учетом Ваших требовании, для того, чтобы Вы могли насладиться полноценным и спокойным времяпровождением в Болгарии. Услуги, которые мы можем предложить, включают страхование, строительство и ремонт, услуги по меблировке, бухгалтерские и юридическиe услуги, переоформление договоров на электричество, воду, телефон и многое другое.
Прочтите текст на других языках (автоматический перевод)
Месторасположение (приблизительно)
Красным маркером на карте указано приблизительное месторасположение этого объекта недвижимости.
Наши лучшие предложения по продажа в София, Болгария
Недвижимость по району, София
- Недвижимость в р-н«Малинова Долина«
- Недвижимость в р-н«Крыстова Вада«
- Недвижимость в р-н«Манастирски Ливади- Восток«
- Недвижимость в р-н«Центр«
- Недвижимость в р-н«Бояна«
- Недвижимость в р-н«Витоша«
- Недвижимость в р-н«Драгалевци«
- Недвижимость в р-н«Лозенец«
- Недвижимость в р-н«Младост 3«
- Недвижимость в р-н«Младост 4«
Недвижимость по типу, София
- Трёхкомнатные квартиры в София
- Двухкомнатные квартиры в София
- Четырехкомнатные квартиры в София
- Апартаменты (различные типы) в София
- Дома в София
- Офисы в София
- Магазины в София
- Многокомнатные квартиры в София
- Земли под застройку в София
- Пентхаусы в двух уровнях в София


ORIGINAL: