REF#SOF-130283 / Участок под застройку с проектом / г. Нови Искър / Софийская область / Болгария / Продажа На карте

Площадь
947 м2

Цена
-7% 192 000 €
180 000 €
(без НДС)
190 €/м2
(без НДС)
Получить больше информации или запланировать осмотр
Инфо пакет
Расстояния
Последняя актуализация
29.01.2026 г.
Расстояние от объекта до других важных точек
- Аэропорт Sofia (SOF): 25 км
Административная информация о предложении
ГАЗИФИКАЦИЯ, ЭЛЕКТРИЧЕСТВО
- Электричество
ВОДОСНАБЖЕНИЕ
- Центральное водоснабжение
КАНАЛИЗАЦИЯ
- Канализация
Этот текст переведен с помощью автоматического программного обеспечения, поэтому в нем не исключаются неточности.
Вы можете ознакомиться с текстом на его оригинальном языке или в переводе на другие языки:
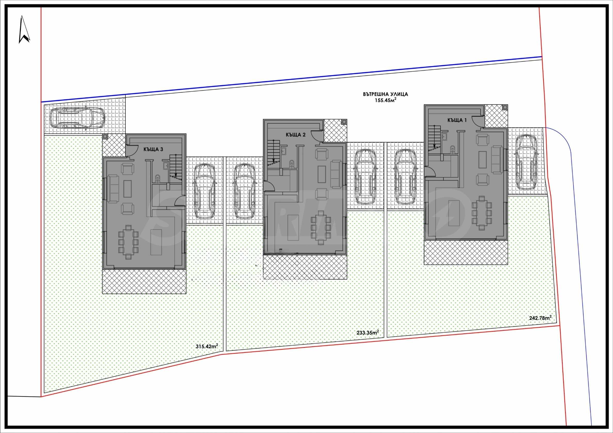
Представляем к продаже урегулированный земельный участок с инвестиционным проектом на три односемейных дома, расположенный в городе... Нови Искыр, район Корило.
Расположение
Недвижимость расположена в удобном месте, в непосредственной близости от школы, остановок общественного транспорта и удобных транспортных развязок, что обеспечивает легкий доступ к центральным частям Софии. Район предлагает спокойную и приятную атмосферу, близость к природе, но в то же время все необходимые удобства для городской жизни.
Функции:
Инфраструктура
Рядом с участком проходит асфальтированная дорога и есть подключение к канализации. Согласованы условия подключения к водопроводу, канализации и электроснабжению, что облегчает дальнейшее строительство.
Общая площадь каждого объекта составляет 183 кв. м., спроектированного с учетом функционального распределения пространств, обеспечивающего максимальный комфорт и удобство:
Мы с нетерпением ждем вашего запроса.
Если вы хотите организовать просмотр интересующей вас недвижимости или посетить один из наших офисов, пожалуйста, свяжитесь с нами. Чтобы договориться о дне и времени встречи или просмотра, вы можете позвонить по указанному в объявлении номеру телефона или отправить запрос по электронной почте. Наш консультант поможет Вам со всеми необходимыми деталями и согласует удобное для Вас время.
Вы ищете подходящую для себя недвижимость?
Не стесняйтесь обращаться к нам и рассказывать о своих потребностях и предпочтениях. Наша команда проведет углубленное исследование рынка, чтобы предложить вам объекты недвижимости, которые точно соответствуют вашим критериям. У нас есть исключительное портфолио высококачественных и эксклюзивных домов, доступных только нашим клиентам. Чтобы первыми получать информацию о них – свяжитесь с нами.
Дополнительные услуги
Как уважаемый клиент нашей компании, вы будете иметь привилегию пользоваться услугами нашей опытной юридической команды совершенно бесплатно. Кроме того, мы предлагаем комплексные решения, включая страхование имущества, бесплатные финансовые консультации, а также выгодные условия финансирования. Наши услуги также распространяются на сферы перепродажи, аренды и управления недвижимостью. Мы выполняем высококачественный ремонт и меблировку помещений через специализированные компании, входящие в нашу корпоративную группу и являющиеся нашими давними профессиональными партнерами.
Смотр недвижимости
Мы готовы организовать смотр недвижимости в удобное для вас время. Обратитесь к ответственному менеджеру по продажам и проинформируйте его, когда бы Вы хотели приехать на смотровой тур. Мы можем помочь Вам забронировать авиабилет и отель, а также помочь Вам оформить визу и необходимую страховку.
Бронирование недвижимости
Вы можете забронировать недвижимость, заплатив невозмещаемый задаток в размере 2 000 евро наличным платежом, кредитной картой или банковским переводом на фирменный счет компании. После получения задатка недвижимость бронируется, осмотры с другими потенциальными покупателями производиться не будут, и начнется изготовление необходимых документов по оформлению сделки. Пожалуйста, обратитесь к ответственному за данный объект менеджеру по продажам для получения подробной информации относительно процедуры покупки и способов оплаты.
Послепродажное обслуживание
Мы уважаемая компания, за плечами которой многолетний опыт работы в сфере недвижимости. Мы будем сопровождать Вас не только во время покупки, но и после приобретения недвижимости, обеспечивая Вам дополнительный набор услуг с учетом Ваших требовании, для того, чтобы Вы могли насладиться полноценным и спокойным времяпровождением в Болгарии. Услуги, которые мы можем предложить, включают страхование, строительство и ремонт, услуги по меблировке, бухгалтерские и юридическиe услуги, переоформление договоров на электричество, воду, телефон и многое другое.
Расположение
Недвижимость расположена в удобном месте, в непосредственной близости от школы, остановок общественного транспорта и удобных транспортных развязок, что обеспечивает легкий доступ к центральным частям Софии. Район предлагает спокойную и приятную атмосферу, близость к природе, но в то же время все необходимые удобства для городской жизни.
Функции:
- расположение: в районе с развитой инфраструктурой и быстрым доступом к столице;
- Площадь участка: 947 м2. с проектом трех независимых односемейных домов, каждый с отдельным двором;
- Общая площадь: 541,68 кв. м, что позволяет создать просторные и функциональные жилые помещения;
- количество парковочных мест: 6, что обеспечивает удобство и безопасность для будущих владельцев;
- Плотность застройки: 50%, что гарантирует сбалансированную среду между застроенными и зелеными зонами;
- Коэффициент интенсивности (Кинт): 1,5%, что позволяет максимально эффективно использовать рельеф местности;
- высота карниза: до 10 м. По проекту дома имеют высоту карниза 5,6 м.
- Высота конька: 7,9 м, расстояние между домами - 7 м.
Инфраструктура
Рядом с участком проходит асфальтированная дорога и есть подключение к канализации. Согласованы условия подключения к водопроводу, канализации и электроснабжению, что облегчает дальнейшее строительство.
Общая площадь каждого объекта составляет 183 кв. м., спроектированного с учетом функционального распределения пространств, обеспечивающего максимальный комфорт и удобство:
- 1 этаж: прихожая, гостиная с кухней и столовой, санузел, кладовая;
- 2 этаж: главная спальня с собственной ванной комнатой с туалетом, две спальни, прачечная, ванная комната с туалетом.
Мы с нетерпением ждем вашего запроса.
Если вы хотите организовать просмотр интересующей вас недвижимости или посетить один из наших офисов, пожалуйста, свяжитесь с нами. Чтобы договориться о дне и времени встречи или просмотра, вы можете позвонить по указанному в объявлении номеру телефона или отправить запрос по электронной почте. Наш консультант поможет Вам со всеми необходимыми деталями и согласует удобное для Вас время.
Вы ищете подходящую для себя недвижимость?
Не стесняйтесь обращаться к нам и рассказывать о своих потребностях и предпочтениях. Наша команда проведет углубленное исследование рынка, чтобы предложить вам объекты недвижимости, которые точно соответствуют вашим критериям. У нас есть исключительное портфолио высококачественных и эксклюзивных домов, доступных только нашим клиентам. Чтобы первыми получать информацию о них – свяжитесь с нами.
Дополнительные услуги
Как уважаемый клиент нашей компании, вы будете иметь привилегию пользоваться услугами нашей опытной юридической команды совершенно бесплатно. Кроме того, мы предлагаем комплексные решения, включая страхование имущества, бесплатные финансовые консультации, а также выгодные условия финансирования. Наши услуги также распространяются на сферы перепродажи, аренды и управления недвижимостью. Мы выполняем высококачественный ремонт и меблировку помещений через специализированные компании, входящие в нашу корпоративную группу и являющиеся нашими давними профессиональными партнерами.
Смотр недвижимости
Мы готовы организовать смотр недвижимости в удобное для вас время. Обратитесь к ответственному менеджеру по продажам и проинформируйте его, когда бы Вы хотели приехать на смотровой тур. Мы можем помочь Вам забронировать авиабилет и отель, а также помочь Вам оформить визу и необходимую страховку.
Бронирование недвижимости
Вы можете забронировать недвижимость, заплатив невозмещаемый задаток в размере 2 000 евро наличным платежом, кредитной картой или банковским переводом на фирменный счет компании. После получения задатка недвижимость бронируется, осмотры с другими потенциальными покупателями производиться не будут, и начнется изготовление необходимых документов по оформлению сделки. Пожалуйста, обратитесь к ответственному за данный объект менеджеру по продажам для получения подробной информации относительно процедуры покупки и способов оплаты.
Послепродажное обслуживание
Мы уважаемая компания, за плечами которой многолетний опыт работы в сфере недвижимости. Мы будем сопровождать Вас не только во время покупки, но и после приобретения недвижимости, обеспечивая Вам дополнительный набор услуг с учетом Ваших требовании, для того, чтобы Вы могли насладиться полноценным и спокойным времяпровождением в Болгарии. Услуги, которые мы можем предложить, включают страхование, строительство и ремонт, услуги по меблировке, бухгалтерские и юридическиe услуги, переоформление договоров на электричество, воду, телефон и многое другое.
Прочтите текст на других языках (автоматический перевод)
Месторасположение (приблизительно)
Красным маркером на карте указано приблизительное месторасположение этого объекта недвижимости.
Наши лучшие предложения по продажа в Нови Искър, Болгария


ORIGINAL: