
Прайс-лист
712 631 – 715 831 €
2 512 €/м2 – 2 527 €/м2
Без комиссии от покупателя
Получить больше информации или запланировать осмотр
Инфо пакет
Состояние
по болгарскому ГОСТу (готово для отделочных работ)
Меблировка
Немеблированная
Отопление
Напольное отопление / Тепловой насос
Окна
Окна ПВХ
Расстояния
Последняя актуализация
23.09.2025 г.
Расстояние от объекта до других важных точек
- Центр города: 12 км
- Аэропорт Sofia (SOF): 9 км
Вид, открывающийся из недвижимости
- Виды на город
- Виды на горы
Отопление
- Напольное отопление
- Тепловой насос
Административная информация о предложении
САНУЗЛЫ И ПОДСОБНЫЕ ПОМЕЩЕНИЯ
- Балконы
- Ванная комната с туалетом
- Веранда
ИЗОЛЯЦИИ И РАБОТЫ ПО ОТДЕЛКЕ
- Армированная входная дверь
- Без меблировки
- Окна ПВХ
- Тройной стеклопакет
УДОБСТВА В ЗДАНИИ
- Комплекс закрытого типа
ДВОР И САД
- Двор
ДОСТУП К НЕДВИЖИМОСТИ И ТЕЛЕКОММУНИКАЦИИ
- Заасфальтированная дорога
Этот текст переведен с помощью автоматического программного обеспечения, поэтому в нем не исключаются неточности.
Вы можете ознакомиться с текстом на его оригинальном языке или в переводе на другие языки:
Экологичная архитектура, современный прагматизм и надежное строительство!
Мы эксклюзивно представляем на продажу новые двухквартирные дома в элитном закрытом жилом комплексе в районе «Малинова Долина» в столице.
Полученным актом 14 - черновое строительство завершено.
Расположенный в районе с малоэтажной застройкой, комплекс предлагает тишину и спокойствие, окруженный зеленью, свежим воздухом и вдохновляющими видами на Софию и гору Витоша.
Он состоит из 12 сблокированных односемейных домов, объединенных в шесть элегантных жилых зданий в альпийском стиле, общей застроенной площадью 2506 кв. м. Он имеет собственный просторный зеленый двор и абсолютно новую инфраструктуру, а также совершенно новую частную асфальтированную дорогу.
У каждого дома в комплексе есть своя зона барбекю для индивидуального пользования, парковочное место, задний двор, отделенный живой изгородью, ваше личное место для отдыха и развлечений.
Площадь дворов домов варьируется от 72 до 165 кв. м.
Незастроенная дворовая территория будет благоустроена и озеленена. Общая площадь озеленения составит 2335,80 кв. метров. - 60%. Также будет предусмотрена система централизованного полива.
Привлекательный торговый центр
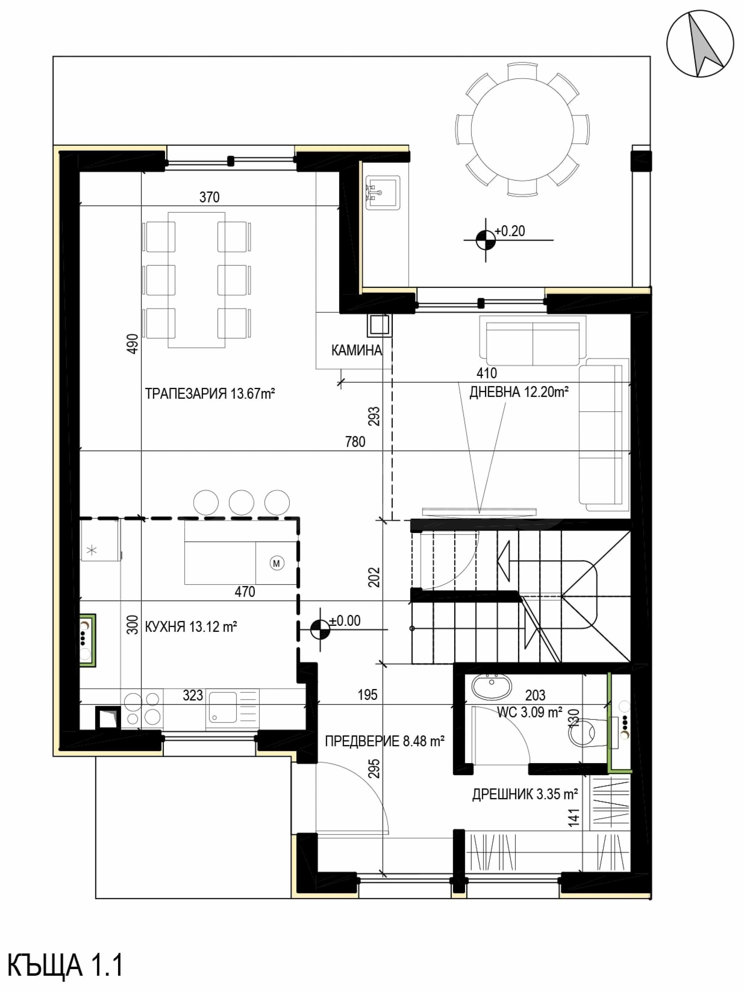
Мечта о гостиной с высоким потолком становится реальностью в каждом доме. Карниз над гостиной спроектирован на впечатляющей высоте 6 метров , визуально объединяя уровни и добавляя интерьеру ощущение пространства и движения. Большие окна, обрамляющие окружающий пейзаж, усиливают ощущение простора и создают естественную связь с природой.
Распределение:
Дома предлагаются в степени готовности, соответствующей болгарским строительным нормам, а конструктивные решения и высококачественные материалы и технологии, использованные при их строительстве, обеспечивают здоровую среду проживания.
Технические упомянутых характеристики:
Мы также можем предложить консультацию дизайнера интерьера по вопросам отделки каждого дома.
Планы оплаты в соответствии с индивидуальными потребностями клиента или:
Вариант 1:
Вариант 2:
Мы с нетерпением ждем вашего запроса.
Если вы хотите договориться о просмотре интересующего вас объекта недвижимости или посетить один из наших офисов, пожалуйста, свяжитесь с нами. Чтобы договориться о встрече или просмотре, позвоните по указанному в объявлении номеру телефона или отправьте запрос по электронной почте. Наш консультант свяжется с вами по всем необходимым вопросам и подберет удобное для вас время.
Вы ищете подходящую для себя недвижимость?
Не стесняйтесь обращаться к нам и рассказать о своих потребностях и предпочтениях. Наша команда проведёт тщательное исследование рынка, чтобы предложить вам недвижимость, которая точно соответствует вашим критериям. У нас есть исключительное портфолио высококачественных и эксклюзивных домов, доступных только нашим клиентам. Чтобы первыми получать информацию о них, свяжитесь с нами.
Дополнительные услуги
Став нашим ценным клиентом, вы получите право пользоваться услугами нашей опытной юридической команды совершенно бесплатно. Кроме того, мы предлагаем комплексные решения, включая страхование имущества, бесплатные финансовые консультации и выгодные условия финансирования. Мы также предлагаем услуги по перепродаже, аренде и управлению недвижимостью. Мы осуществляем высококачественный ремонт и меблировку через специализированные компании, входящие в нашу группу компаний и являющиеся нашими давними профессиональными партнерами.
Смотр недвижимости
Мы готовы организовать смотр недвижимости в удобное для вас время. Обратитесь к ответственному менеджеру по продажам и проинформируйте его, когда бы Вы хотели приехать на смотровой тур. Мы можем помочь Вам забронировать авиабилет и отель, а также помочь Вам оформить визу и необходимую страховку.
Бронирование недвижимости
Вы можете забронировать недвижимость, заплатив невозмещаемый задаток в размере 2 000 евро наличным платежом, кредитной картой или банковским переводом на фирменный счет компании. После получения задатка недвижимость бронируется, осмотры с другими потенциальными покупателями производиться не будут, и начнется изготовление необходимых документов по оформлению сделки. Пожалуйста, обратитесь к ответственному за данный объект менеджеру по продажам для получения подробной информации относительно процедуры покупки и способов оплаты.
Послепродажное обслуживание
Мы уважаемая компания, за плечами которой многолетний опыт работы в сфере недвижимости. Мы будем сопровождать Вас не только во время покупки, но и после приобретения недвижимости, обеспечивая Вам дополнительный набор услуг с учетом Ваших требовании, для того, чтобы Вы могли насладиться полноценным и спокойным времяпровождением в Болгарии. Услуги, которые мы можем предложить, включают страхование, строительство и ремонт, услуги по меблировке, бухгалтерские и юридическиe услуги, переоформление договоров на электричество, воду, телефон и многое другое.
Мы эксклюзивно представляем на продажу новые двухквартирные дома в элитном закрытом жилом комплексе в районе «Малинова Долина» в столице.
Полученным актом 14 - черновое строительство завершено.
Расположенный в районе с малоэтажной застройкой, комплекс предлагает тишину и спокойствие, окруженный зеленью, свежим воздухом и вдохновляющими видами на Софию и гору Витоша.
Он состоит из 12 сблокированных односемейных домов, объединенных в шесть элегантных жилых зданий в альпийском стиле, общей застроенной площадью 2506 кв. м. Он имеет собственный просторный зеленый двор и абсолютно новую инфраструктуру, а также совершенно новую частную асфальтированную дорогу.
У каждого дома в комплексе есть своя зона барбекю для индивидуального пользования, парковочное место, задний двор, отделенный живой изгородью, ваше личное место для отдыха и развлечений.
Площадь дворов домов варьируется от 72 до 165 кв. м.
Незастроенная дворовая территория будет благоустроена и озеленена. Общая площадь озеленения составит 2335,80 кв. метров. - 60%. Также будет предусмотрена система централизованного полива.
Привлекательный торговый центр
Мечта о гостиной с высоким потолком становится реальностью в каждом доме. Карниз над гостиной спроектирован на впечатляющей высоте 6 метров , визуально объединяя уровни и добавляя интерьеру ощущение пространства и движения. Большие окна, обрамляющие окружающий пейзаж, усиливают ощущение простора и создают естественную связь с природой.
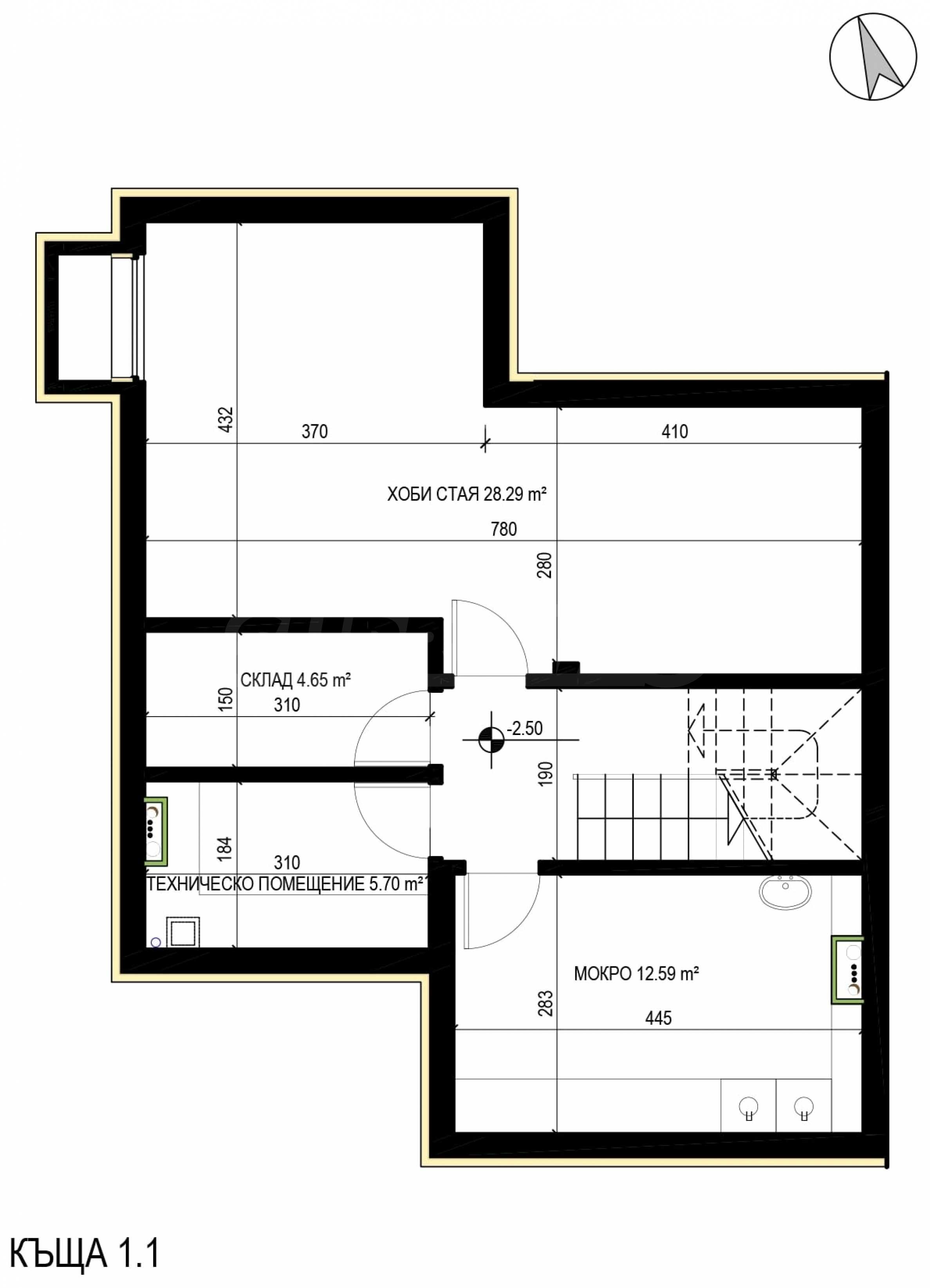
Распределение:
- На первом этаже (отметка ±0,00) расположена гостиная с антресолью в зоне отдыха высотой до третьего этажа, столовая и кухня, соединенные с открытой террасой и санузлом; двор и зона барбекю;
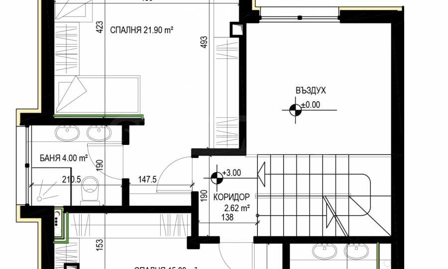
- На втором этаже - две спальни с собственными ванными комнатами и туалетами;
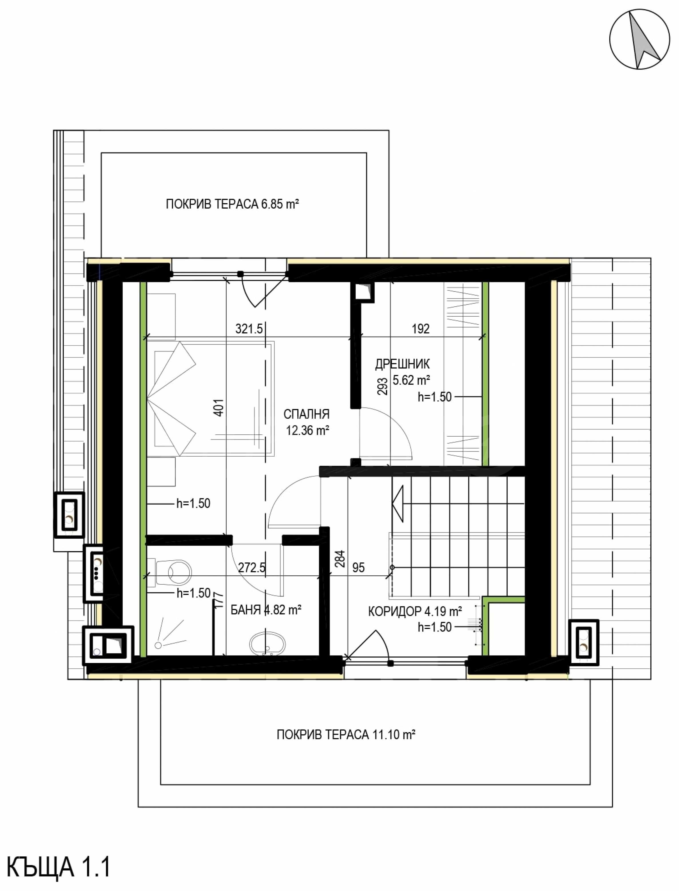
- На втором этаже расположена большая спальня с гардеробной, собственная ванная комната, туалет и две террасы;
- В подвале (на отметке -2,40 с естественным освещением по типу «английский дворик») располагаются хозяйственные помещения: кладовая, прачечная и хобби-комната.
- Акт 14 - 04.2025
- Акт 15 - 01.2026
- Акт 16 - 05.2026
Дома предлагаются в степени готовности, соответствующей болгарским строительным нормам, а конструктивные решения и высококачественные материалы и технологии, использованные при их строительстве, обеспечивают здоровую среду проживания.
Технические упомянутых характеристики:
- монолитная конструкция из бетона класса С 20/25 и арматурной стали В500В;
- теплоизоляция и гидроизоляция мембранным материалом General;
- фасады с клинкерным кирпичом и штукатуркой Baumit;
- кладка кирпичом Wienerberger Porotherm;
- металлическая кровельно-фасадная система, обеспечивающая отличную теплоизоляцию, повышенную паропроницаемость, гидро- и шумоизоляцию; идеальная основа для установки в будущем конструкций солнечных и фотоэлектрических панелей;
- шумоизоляция - на полу квартир уложена звукоизоляционная мембрана со стяжкой против ударного шума;
- качественная бронированная входная дверь;
- энергосберегающие столярные изделия из ПВХ с 7-камерным профилем и трехслойным остеклением из энергосберегающего стекла (4 сезона);
- Отопление: тепловой насос класса «ААА», система «теплый пол» в каждой комнате и выводы радиаторов.
Мы также можем предложить консультацию дизайнера интерьера по вопросам отделки каждого дома.
Планы оплаты в соответствии с индивидуальными потребностями клиента или:
Вариант 1:
- 20% от предварительного контракта
- 70% Акта 15;
- 10% по Акту 16.
Вариант 2:
- 10% по Предварительному соглашению;
- 30% от Акта 14;
- 50% от Акта 15;
- 10% по Акту 16.
Мы с нетерпением ждем вашего запроса.
Если вы хотите договориться о просмотре интересующего вас объекта недвижимости или посетить один из наших офисов, пожалуйста, свяжитесь с нами. Чтобы договориться о встрече или просмотре, позвоните по указанному в объявлении номеру телефона или отправьте запрос по электронной почте. Наш консультант свяжется с вами по всем необходимым вопросам и подберет удобное для вас время.
Вы ищете подходящую для себя недвижимость?
Не стесняйтесь обращаться к нам и рассказать о своих потребностях и предпочтениях. Наша команда проведёт тщательное исследование рынка, чтобы предложить вам недвижимость, которая точно соответствует вашим критериям. У нас есть исключительное портфолио высококачественных и эксклюзивных домов, доступных только нашим клиентам. Чтобы первыми получать информацию о них, свяжитесь с нами.
Дополнительные услуги
Став нашим ценным клиентом, вы получите право пользоваться услугами нашей опытной юридической команды совершенно бесплатно. Кроме того, мы предлагаем комплексные решения, включая страхование имущества, бесплатные финансовые консультации и выгодные условия финансирования. Мы также предлагаем услуги по перепродаже, аренде и управлению недвижимостью. Мы осуществляем высококачественный ремонт и меблировку через специализированные компании, входящие в нашу группу компаний и являющиеся нашими давними профессиональными партнерами.
Смотр недвижимости
Мы готовы организовать смотр недвижимости в удобное для вас время. Обратитесь к ответственному менеджеру по продажам и проинформируйте его, когда бы Вы хотели приехать на смотровой тур. Мы можем помочь Вам забронировать авиабилет и отель, а также помочь Вам оформить визу и необходимую страховку.
Бронирование недвижимости
Вы можете забронировать недвижимость, заплатив невозмещаемый задаток в размере 2 000 евро наличным платежом, кредитной картой или банковским переводом на фирменный счет компании. После получения задатка недвижимость бронируется, осмотры с другими потенциальными покупателями производиться не будут, и начнется изготовление необходимых документов по оформлению сделки. Пожалуйста, обратитесь к ответственному за данный объект менеджеру по продажам для получения подробной информации относительно процедуры покупки и способов оплаты.
Послепродажное обслуживание
Мы уважаемая компания, за плечами которой многолетний опыт работы в сфере недвижимости. Мы будем сопровождать Вас не только во время покупки, но и после приобретения недвижимости, обеспечивая Вам дополнительный набор услуг с учетом Ваших требовании, для того, чтобы Вы могли насладиться полноценным и спокойным времяпровождением в Болгарии. Услуги, которые мы можем предложить, включают страхование, строительство и ремонт, услуги по меблировке, бухгалтерские и юридическиe услуги, переоформление договоров на электричество, воду, телефон и многое другое.
Прочтите текст на других языках (автоматический перевод)
Месторасположение (приблизительно)
Красным маркером на карте указано приблизительное месторасположение этого объекта недвижимости.
Наши лучшие предложения по продажа в София, Болгария
Недвижимость по району, София
- Недвижимость в р-н«Малинова Долина«
- Недвижимость в р-н«Крыстова Вада«
- Недвижимость в р-н«Манастирски Ливади- Восток«
- Недвижимость в р-н«Центр«
- Недвижимость в р-н«Бояна«
- Недвижимость в р-н«Драгалевци«
- Недвижимость в р-н«Витоша«
- Недвижимость в р-н«Лозенец«
- Недвижимость в р-н«Овча Купел«
- Недвижимость в р-н«Младост 3«
Недвижимость по типу, София
- Трёхкомнатные квартиры в София
- Двухкомнатные квартиры в София
- Четырехкомнатные квартиры в София
- Апартаменты (различные типы) в София
- Дома в София
- Офисы в София
- Магазины в София
- Земли под застройку в София
- Пентхаусы в двух уровнях в София
- Многокомнатные квартиры в София



ORIGINAL: