Этажность
9
Этаж
2
Лифт
да
Комнаты
2
Спальни
1
Ванные комнаты
1

Площадь
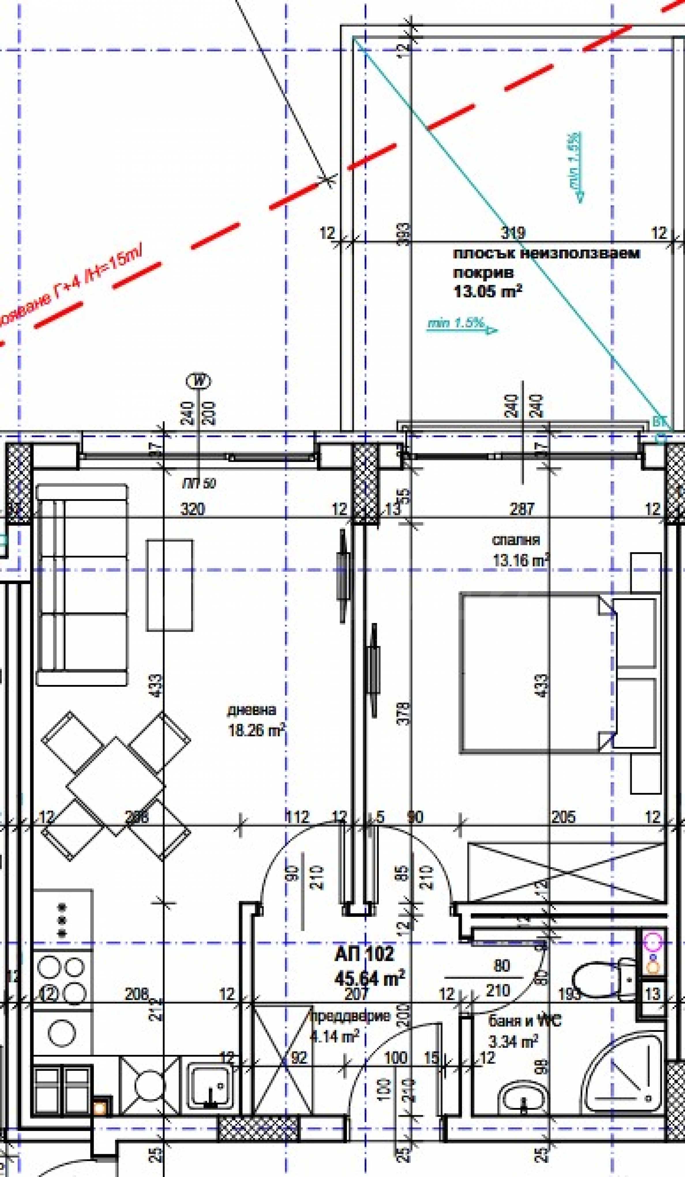
53.43 м2
Жилая площадь
40.38 м2
Общие части
13.05 м2
Этап строительства
В процессе строительства
Сдача планируется
Ноябрь 2027

Получить больше информации или запланировать осмотр
Инфо пакет
Состояние
по болгарскому ГОСТу (готово для отделочных работ)
Меблировка
Отопление
Паровое отопление на электричестве
Окна
Окна ПВХ
Расстояния
Последняя актуализация
22.10.2025 г.
Расстояние от объекта до других важных точек
- Центр города: 7 км
- Аэропорт Sofia (SOF): 5 км
Вид, открывающийся из недвижимости
- Виды на город
Строительство
- Кирпич
Отопление
- Паровое отопление на электричестве
Административная информация о предложении
ГАЗИФИКАЦИЯ, ЭЛЕКТРИЧЕСТВО
- Электричество
ВОДОСНАБЖЕНИЕ
- Центральное водоснабжение
ФАСАД
- внешняя изоляция
- декоративные элементы
- минеральная штукатурка
КАНАЛИЗАЦИЯ
- Канализация
ИЗОЛЯЦИИ И РАБОТЫ ПО ОТДЕЛКЕ
- Армированная входная дверь
- Без меблировки
- Окна ПВХ
- Тройной стеклопакет
УДОБСТВА В ЗДАНИИ
- Лифт
Этот текст переведен с помощью автоматического программного обеспечения, поэтому в нем не исключаются неточности.
Вы можете ознакомиться с текстом на его оригинальном языке или в переводе на другие языки:
Представляем на продажу двухкомнатную квартиру, в новостройке элегантного классического вида, в удобном месте района. «Левски Г» в Софии.
В разработке. Планируемое завершение - 11.2027.
Недвижимость общей площадью 53,43 кв.м. расположена на 2 этаже с видом на восток.
Выдается в степени завершенности по БДС:
В продолжение бул. «Владимир Вазов» планируется иметь 3 станции:
О здании
Здание состоит из 2 секций с квартирами на 9 жилых этажах. Жилье представлено двухкомнатными, трехкомнатными и четырехкомнатными. Возможно приобретение гаражей по цене от 26 500 евро, а также кладовых.
Технические упомянутых отличительных характеристики здания:
Если вы хотите организовать просмотр интересующей вас недвижимости или посетить один из наших офисов, пожалуйста, свяжитесь с нами. Чтобы согласовать день и время встречи или осмотра, вы можете позвонить по телефону, указанному в объявлении, или отправить запрос на электронную почту. Наш консультант поможет Вам уточнить все необходимые детали и согласовать удобное для Вас время.
Вы ищете подходящую недвижимость для вас?
Не стесняйтесь обращаться к нам и рассказывать о своих потребностях и предпочтениях. Наша команда проведет тщательное исследование рынка, чтобы предложить вам недвижимость, которая точно соответствует вашим критериям. У нас есть исключительное портфолио высококачественных и эксклюзивных домов, которые доступны только нашим клиентам. Чтобы первыми получать информацию о них - свяжитесь с нами.
Дополнительные услуги
Как ценный клиент нашей компании, вы будете иметь возможность совершенно бесплатно воспользоваться услугами нашей опытной команды юристов. Кроме того, мы предлагаем комплексные решения, включающие страхование имущества, бесплатную финансовую консультацию, а также выгодные условия финансирования. Наши услуги также распространяются на перепродажу, аренду и управление недвижимостью. Мы осуществляем качественные ремонтные работы и меблировку через специализированные компании, входящие в нашу корпоративную группу и являющиеся нашими многолетними профессиональными партнерами.
Смотр недвижимости
Мы готовы организовать смотр недвижимости в удобное для вас время. Обратитесь к ответственному менеджеру по продажам и проинформируйте его, когда бы Вы хотели приехать на смотровой тур. Мы можем помочь Вам забронировать авиабилет и отель, а также помочь Вам оформить визу и необходимую страховку.
Бронирование недвижимости
Вы можете забронировать недвижимость, заплатив невозмещаемый задаток в размере 2 000 евро наличным платежом, кредитной картой или банковским переводом на фирменный счет компании. После получения задатка недвижимость бронируется, осмотры с другими потенциальными покупателями производиться не будут, и начнется изготовление необходимых документов по оформлению сделки. Пожалуйста, обратитесь к ответственному за данный объект менеджеру по продажам для получения подробной информации относительно процедуры покупки и способов оплаты.
Послепродажное обслуживание
Мы уважаемая компания, за плечами которой многолетний опыт работы в сфере недвижимости. Мы будем сопровождать Вас не только во время покупки, но и после приобретения недвижимости, обеспечивая Вам дополнительный набор услуг с учетом Ваших требовании, для того, чтобы Вы могли насладиться полноценным и спокойным времяпровождением в Болгарии. Услуги, которые мы можем предложить, включают страхование, строительство и ремонт, услуги по меблировке, бухгалтерские и юридическиe услуги, переоформление договоров на электричество, воду, телефон и многое другое.
В разработке. Планируемое завершение - 11.2027.
Недвижимость общей площадью 53,43 кв.м. расположена на 2 этаже с видом на восток.
Выдается в степени завершенности по БДС:
- Окна ПВХ шестикамерные, немецкого профиля с тройным стеклопакетом, с одним низкоэмиссионным стеклом;
- входная дверь – бронированная, с секретным замком высокого класса;
- отопление электрической энергией с готовыми выводами для кондиционеров;
- отделанные стены и потолки до гипсовой штукатурки с уложенными по краям алюминиевыми уголками;
- потолки неотапливаемых помещений, граничащих с отапливаемыми, с уложенной теплоизоляцией из экструдированного пенополистирола XPS;
- санитарные и влажные помещения залиты известково-цементной штукатуркой;
- цементная стяжка пола;
- террасы с гранитным полом;
- установленная приборная панель, расположенная возле входной двери;
- слаботочные установки – по проекту со слаботочной коробкой, установленной у входной двери;
- проводка для СОТ;
- установка видеодомофона - полная проводка, видеодомофон;
- установлены счетчики электроэнергии.
В продолжение бул. «Владимир Вазов» планируется иметь 3 станции:
- метро «Владимир Вазов» – всего 450 метров от здания;
- метро «Тракия» – 500 метров;
- метро «Стадион имени Георгия Аспарухова» - 1,5 км от дома.
- стадион «Виваком Арена – Георгий Аспарухов» – 1 км;
- Декатлон – 480 м, плавательно-развлекательный комплекс «Варадеро» – 500 м;
- Св. Центр «Оборище» и Сердика, бульв. «Мадрид» – 3,5 км;
- Парк Герена – 1 км, Парк Заимова – 5 км;
- центр Софии, бул. Витоша – 7 км;
- Аэропорт Софии – 5 км.
О здании
Здание состоит из 2 секций с квартирами на 9 жилых этажах. Жилье представлено двухкомнатными, трехкомнатными и четырехкомнатными. Возможно приобретение гаражей по цене от 26 500 евро, а также кладовых.
Технические упомянутых отличительных характеристики здания:
- монолитная, железобетонная безбалочная конструкция фундаментной плиты;
- с гидроизоляцией фундамента здания – система Kryton International Inc. Система гидрошпонки Krystol;
- Кладка из керамического кирпича WIENERBERGER;
- наружные ограждающие стены – керамический кирпич Porotherm 25 см и система теплоизоляции /пенополистирол/;
- для внутренних кирпичных стен – керамический кирпич Porotherm 12 см, с шумоизоляцией между квартирами;
- крыша плоская с уложенными слоями по деталям – пароизоляция, утепление из экструдированного пенополистирола – XPS, армированная стяжка с уклоном, два слоя рулонной битумной гидроизоляции; отсутствие тепловых мостов на элементах конструкции;
- общие части – гранит или натуральный камень;
- лифты с роскошными кабинами с автоматическими дверями.
Если вы хотите организовать просмотр интересующей вас недвижимости или посетить один из наших офисов, пожалуйста, свяжитесь с нами. Чтобы согласовать день и время встречи или осмотра, вы можете позвонить по телефону, указанному в объявлении, или отправить запрос на электронную почту. Наш консультант поможет Вам уточнить все необходимые детали и согласовать удобное для Вас время.
Вы ищете подходящую недвижимость для вас?
Не стесняйтесь обращаться к нам и рассказывать о своих потребностях и предпочтениях. Наша команда проведет тщательное исследование рынка, чтобы предложить вам недвижимость, которая точно соответствует вашим критериям. У нас есть исключительное портфолио высококачественных и эксклюзивных домов, которые доступны только нашим клиентам. Чтобы первыми получать информацию о них - свяжитесь с нами.
Дополнительные услуги
Как ценный клиент нашей компании, вы будете иметь возможность совершенно бесплатно воспользоваться услугами нашей опытной команды юристов. Кроме того, мы предлагаем комплексные решения, включающие страхование имущества, бесплатную финансовую консультацию, а также выгодные условия финансирования. Наши услуги также распространяются на перепродажу, аренду и управление недвижимостью. Мы осуществляем качественные ремонтные работы и меблировку через специализированные компании, входящие в нашу корпоративную группу и являющиеся нашими многолетними профессиональными партнерами.
Смотр недвижимости
Мы готовы организовать смотр недвижимости в удобное для вас время. Обратитесь к ответственному менеджеру по продажам и проинформируйте его, когда бы Вы хотели приехать на смотровой тур. Мы можем помочь Вам забронировать авиабилет и отель, а также помочь Вам оформить визу и необходимую страховку.
Бронирование недвижимости
Вы можете забронировать недвижимость, заплатив невозмещаемый задаток в размере 2 000 евро наличным платежом, кредитной картой или банковским переводом на фирменный счет компании. После получения задатка недвижимость бронируется, осмотры с другими потенциальными покупателями производиться не будут, и начнется изготовление необходимых документов по оформлению сделки. Пожалуйста, обратитесь к ответственному за данный объект менеджеру по продажам для получения подробной информации относительно процедуры покупки и способов оплаты.
Послепродажное обслуживание
Мы уважаемая компания, за плечами которой многолетний опыт работы в сфере недвижимости. Мы будем сопровождать Вас не только во время покупки, но и после приобретения недвижимости, обеспечивая Вам дополнительный набор услуг с учетом Ваших требовании, для того, чтобы Вы могли насладиться полноценным и спокойным времяпровождением в Болгарии. Услуги, которые мы можем предложить, включают страхование, строительство и ремонт, услуги по меблировке, бухгалтерские и юридическиe услуги, переоформление договоров на электричество, воду, телефон и многое другое.
Прочтите текст на других языках (автоматический перевод)
Месторасположение (приблизительно)
Красным маркером на карте указано приблизительное месторасположение этого объекта недвижимости.
Недвижимость по району, София
- Недвижимость в р-н«Малинова Долина«
- Недвижимость в р-н«Крыстова Вада«
- Недвижимость в р-н«Манастирски Ливади- Восток«
- Недвижимость в р-н«Центр«
- Недвижимость в р-н«Бояна«
- Недвижимость в р-н«Витоша«
- Недвижимость в р-н«Драгалевци«
- Недвижимость в р-н«Лозенец«
- Недвижимость в р-н«Младост 3«
- Недвижимость в р-н«Младост 4«
Недвижимость по типу, София
- Трёхкомнатные квартиры в София
- Двухкомнатные квартиры в София
- Четырехкомнатные квартиры в София
- Апартаменты (различные типы) в София
- Дома в София
- Офисы в София
- Магазины в София
- Многокомнатные квартиры в София
- Земли под застройку в София
- Пентхаусы в двух уровнях в София


ORIGINAL: