
Площадь
115.55 м2
Жилая площадь
97.55 м2
Общие части
18 м2
Этап строительства
В процессе строительства
Сдача планируется
Октябрь 2026
Получить больше информации или запланировать осмотр
Расстояние от объекта до других важных точек
- Центр города: 1 км
- Аэропорт Sofia (SOF): 15 км
- Продуктовый магазин: 400м
- Остановка: 300м
- Больница: 200м
- Школа: 1 км
Строительство
- Кирпич
Отопление
- Центральное отопление
Административная информация о предложении
ГАЗИФИКАЦИЯ, ЭЛЕКТРИЧЕСТВО
- Электричество
ВОДОСНАБЖЕНИЕ
- Вода
- Центральное водоснабжение
ЛИФТЫ
- автоматические двери
- люксовые лифты
КАНАЛИЗАЦИЯ
- Канализация
- Центральная канализация
Этот текст переведен с помощью автоматического программного обеспечения, поэтому в нем не исключаются неточности.
Вы можете ознакомиться с текстом на его оригинальном языке или в переводе на другие языки:
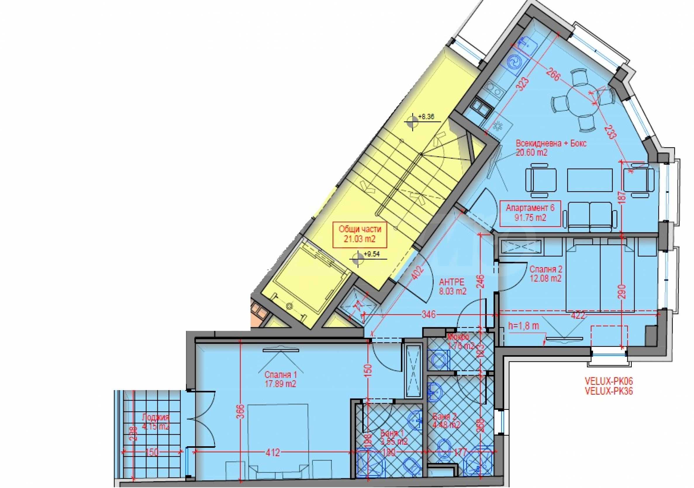
Предлагаемая квартира – это трехкомнатная квартира № 6, расположенная на четвертом этаже, площадью 110,71 м2 – подвал 4,84 м2, со следующей планировкой: прихожая, гостиная с кухонным уголком, спальня, вторая спальня с собственной ванной комнатой и выходом на балкон, подсобное помещение и вторая ванная комната с туалетом.
Основные отличительных характеристики:
План оплаты:
или составление индивидуального плана платежей
Основные преимущества местоположения:
Это проект со стратегически выгодным расположением и ограниченным количеством квартир, предоставляющий возможность комфортного и современного проживания в центре города. Свяжитесь с нами для получения дополнительной информации или организации просмотра.
Мы с нетерпением ждём вашего запроса.
Если вы хотите договориться о просмотре интересующего вас объекта недвижимости или посетить один из наших офисов, пожалуйста, свяжитесь с нами. Чтобы согласовать день и время встречи или просмотра, вы можете позвонить по номеру телефона, указанному в объявлении, или отправить запрос по электронной почте. Наш консультант поможет вам со всеми необходимыми деталями и согласует удобное для вас время.
Вы ищете подходящую недвижимость?
Не стесняйтесь обращаться к нам и рассказывать о ваших потребностях и предпочтениях. Наша команда проведет тщательное исследование рынка, чтобы предложить вам объекты недвижимости, точно соответствующие вашим критериям. У нас есть исключительное портфолио высококачественных и эксклюзивных домов, доступных только нашим клиентам. Чтобы первыми получать информацию о них – свяжитесь с нами.
Дополнительные услуги
Как ценный клиент нашей компании, вы получите привилегию пользоваться услугами нашей опытной юридической команды совершенно бесплатно. Кроме того, мы предлагаем комплексные решения, включая страхование недвижимости, бесплатные финансовые консультации, а также выгодные условия финансирования. Наши услуги также распространяются на сферу перепродажи, аренды и управления недвижимостью. Мы предоставляем высококачественные услуги по ремонту и меблировке через специализированные компании, входящие в нашу корпоративную группу и являющиеся нашими давними профессиональными партнерами.
Смотр недвижимости
Мы готовы организовать смотр недвижимости в удобное для вас время. Обратитесь к ответственному менеджеру по продажам и проинформируйте его, когда бы Вы хотели приехать на смотровой тур. Мы можем помочь Вам забронировать авиабилет и отель, а также помочь Вам оформить визу и необходимую страховку.
Бронирование недвижимости
Вы можете забронировать недвижимость, заплатив невозмещаемый задаток в размере 2 000 евро наличным платежом, кредитной картой или банковским переводом на фирменный счет компании. После получения задатка недвижимость бронируется, осмотры с другими потенциальными покупателями производиться не будут, и начнется изготовление необходимых документов по оформлению сделки. Пожалуйста, обратитесь к ответственному за данный объект менеджеру по продажам для получения подробной информации относительно процедуры покупки и способов оплаты.
Послепродажное обслуживание
Мы уважаемая компания, за плечами которой многолетний опыт работы в сфере недвижимости. Мы будем сопровождать Вас не только во время покупки, но и после приобретения недвижимости, обеспечивая Вам дополнительный набор услуг с учетом Ваших требовании, для того, чтобы Вы могли насладиться полноценным и спокойным времяпровождением в Болгарии. Услуги, которые мы можем предложить, включают страхование, строительство и ремонт, услуги по меблировке, бухгалтерские и юридическиe услуги, переоформление договоров на электричество, воду, телефон и многое другое.
Красным маркером на карте указано приблизительное месторасположение этого объекта недвижимости.
Вам понадобится приложение, читающее файлы в формате .PDF. Если такое приложение у вас не установлено, скачайте Acrobat Reader отсюда.
- Недвижимость в р-н«Крыстова Вада«
- Недвижимость в р-н«Малинова Долина«
- Недвижимость в р-н«Манастирски Ливади- Восток«
- Недвижимость в р-н«Центр«
- Недвижимость в р-н«Бояна«
- Недвижимость в р-н«Витоша«
- Недвижимость в р-н«Драгалевци«
- Недвижимость в р-н«Лозенец«
- Недвижимость в р-н«Овча Купел«
- Недвижимость в р-н«Симеоново«
- Трёхкомнатные квартиры в София
- Двухкомнатные квартиры в София
- Четырехкомнатные квартиры в София
- Апартаменты (различные типы) в София
- Дома в София
- Офисы в София
- Магазины в София
- Многокомнатные квартиры в София
- Земли под застройку в София
- Пентхаусы в двух уровнях в София



ORIGINAL: