Двухкомнатная квартира в новом комплексе в районе "Каршияка" в Пловдиве
ОБЪЕКТ НЕДОСТУПЕН
ОБЪЕКТ НЕДОСТУПЕН
ОБЪЕКТ НЕДОСТУПЕН
Невалидное предложение
Невалидное предложение
Невалидное предложение
REF#PLV-122057 / Двухкомнатная квартира / р-н Кыршияка / г. Пловдив / Пловдивская область / Болгария / Продажа На карте
Этажность
6
Этаж
5
Лифт
да
Комнаты
2
Спальни
1
Ванные комнаты
1
Площадь террасы
3.96 м2
Балконы (Террасы)
1
Подвал
да
Подвал (кв.м)
2.91 м2
Кабинет
нет

Площадь
70.96 м2
Жилая площадь
62.32 м2
Общие части
8.64 м2
Терраса
3.96 м2

Получить больше информации или запланировать осмотр
Инфо пакет
Состояние
по болгарскому ГОСТу (готово для отделочных работ)
Меблировка
Отопление
Отопление кондиционером
Кондиционер
Инвенторные кондиционеры, Стандартные кондиционеры
Расстояния
Последняя актуализация
19.01.2026 г.
Расстояние от объекта до других важных точек
- Центр города: 2.2 км
- Аэропорт : 15.8 км
Вид, открывающийся из недвижимости
- Виды на внутренний двор
- Виды на город
Строительство
- Железобетонная конструкция
- Кирпич
Отопление
- Отопление кондиционером
Кондиционирование
- Инвенторные кондиционеры
- Стандартные кондиционеры
Административная информация о предложении
ГАЗИФИКАЦИЯ, ЭЛЕКТРИЧЕСТВО
- Электричество
ВОДОСНАБЖЕНИЕ
- Вода
- Центральное водоснабжение
ЛИФТЫ
- автоматические двери
- люксовые лифты
ФАСАД
- алюминиевые композитные панели
- внешняя изоляция
- натуральный камень
КАНАЛИЗАЦИЯ
- Канализация
- Центральная канализация
ФИНИШНАЯ ОТДЕЛКА МЕСТ ОБЩЕГО ПОЛЬЗОВАНИЯ
- мрамор
- натуральный камень
- стены покрашенные латексной краской
КРЫША
- изоляция на крыше
- плоская крыша
САНУЗЛЫ И ПОДСОБНЫЕ ПОМЕЩЕНИЯ
- Ванная комната с туалетом
- Кладовая
- Терраса
ИЗОЛЯЦИИ И РАБОТЫ ПО ОТДЕЛКЕ
- Алюминиевые окна
- Армированная входная дверь
- Без меблировки
- Внешняя изоляция
- Крепкие стены
УДОБСТВА В ЗДАНИИ
- Комплекс закрытого типа
- Лифт
- Общие части с отделкой люкс
ДВОР И САД
- Цветочный сад
ДОСТУП К НЕДВИЖИМОСТИ И ТЕЛЕКОММУНИКАЦИИ
- Заасфальтированная дорога
- Интернет
- Интернет Wi-Fi
ДРУГИЕ
- В жилом доме
- Продуктовый магазин поблизости
Этот текст переведен с помощью автоматического программного обеспечения, поэтому в нем не исключаются неточности.
Вы можете ознакомиться с текстом на его оригинальном языке или в переводе на другие языки:
Представляем новую двухкомнатную квартиру в современном комплексе, в районе Кыршияка города Пловдив. Удобное расположение в непосредственной близости от главного бульвара, кольцевой дороги, автобусных остановок, продуктовых магазинов, школ, университета и больницы. Рядом находится спортивный комплекс и велосипедная дорожка.
БЕЗ КОМИССИИ!
Комплекс находится в стадии строительства, сдача Акта 16 ожидается в 2026 году.
Он состоит из двух секций, каждая из которых имеет шесть этажей, и предлагает одно-, двух- и трёхкомнатные квартиры, а на первом этаже расположены кафе, ресторан и офисные помещения. Также предусмотрены парковка и зелёные зоны, а также озеленение в виде травяной растительности с различными видами растений.
Это инновационный проект, сочетающий в себе функциональность, комфорт и безупречное качество строительства. Планировки квартир максимально функциональны, что облегчает их обустройство, а приятным бонусом к этому является прекрасный вид на Родопские горы. Концепция проекта вдохновлена стремлением создать приятную и гармоничную архитектуру, которая безупречно впишется в общую картину района. Миссия проекта — обеспечить комфорт и спокойствие будущим владельцам.
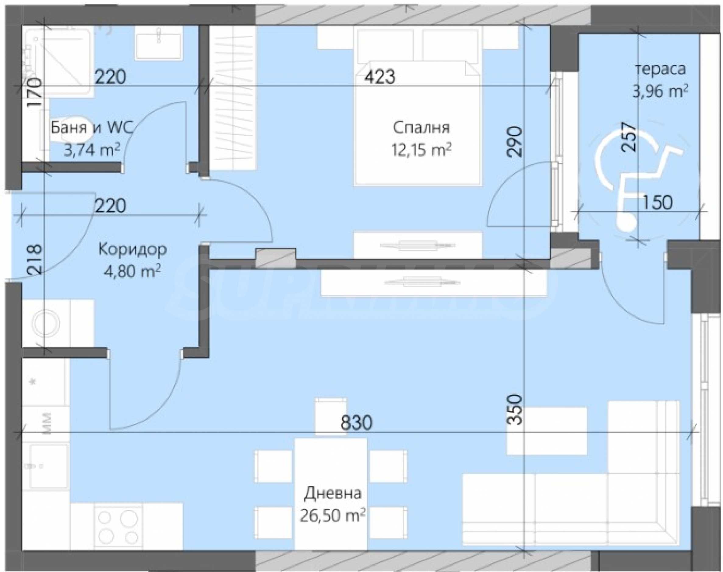
Квартира общей площадью 70,96 кв. м расположена на 5 этаже из 6, окна выходят на восток.
Он состоит из:
Квартира сдается в состоянии, готовом к застройке в соответствии с Болгарским гражданским кодексом:
При создании комплекса используются только качественные материалы и технологии, отвечающие требованиям и предпочтениям современного жилищного строительства.
Технические обозначенных отличительных упомянутых обозначенных характеристики:
Парковка на 100% охраняемая.
Доступны индивидуальные планы оплаты.
Для просмотра и консультации обращайтесь к брокеру, ответственному за предложение.
Смотр недвижимости
Мы готовы организовать смотр недвижимости в удобное для вас время. Обратитесь к ответственному менеджеру по продажам и проинформируйте его, когда бы Вы хотели приехать на смотровой тур. Мы можем помочь Вам забронировать авиабилет и отель, а также помочь Вам оформить визу и необходимую страховку.
Бронирование недвижимости
Вы можете забронировать недвижимость, заплатив невозмещаемый задаток в размере 2 000 евро наличным платежом, кредитной картой или банковским переводом на фирменный счет компании. После получения задатка недвижимость бронируется, осмотры с другими потенциальными покупателями производиться не будут, и начнется изготовление необходимых документов по оформлению сделки. Пожалуйста, обратитесь к ответственному за данный объект менеджеру по продажам для получения подробной информации относительно процедуры покупки и способов оплаты.
Послепродажное обслуживание
Мы уважаемая компания, за плечами которой многолетний опыт работы в сфере недвижимости. Мы будем сопровождать Вас не только во время покупки, но и после приобретения недвижимости, обеспечивая Вам дополнительный набор услуг с учетом Ваших требовании, для того, чтобы Вы могли насладиться полноценным и спокойным времяпровождением в Болгарии. Услуги, которые мы можем предложить, включают страхование, строительство и ремонт, услуги по меблировке, бухгалтерские и юридическиe услуги, переоформление договоров на электричество, воду, телефон и многое другое.
БЕЗ КОМИССИИ!
Комплекс находится в стадии строительства, сдача Акта 16 ожидается в 2026 году.
Он состоит из двух секций, каждая из которых имеет шесть этажей, и предлагает одно-, двух- и трёхкомнатные квартиры, а на первом этаже расположены кафе, ресторан и офисные помещения. Также предусмотрены парковка и зелёные зоны, а также озеленение в виде травяной растительности с различными видами растений.
Это инновационный проект, сочетающий в себе функциональность, комфорт и безупречное качество строительства. Планировки квартир максимально функциональны, что облегчает их обустройство, а приятным бонусом к этому является прекрасный вид на Родопские горы. Концепция проекта вдохновлена стремлением создать приятную и гармоничную архитектуру, которая безупречно впишется в общую картину района. Миссия проекта — обеспечить комфорт и спокойствие будущим владельцам.
Квартира общей площадью 70,96 кв. м расположена на 5 этаже из 6, окна выходят на восток.
Он состоит из:
- гостиная со столовой и мини-кухней;
- спальня;
- коридор;
- ванная комната с туалетом;
- терраса;
- шкаф.
Квартира сдается в состоянии, готовом к застройке в соответствии с Болгарским гражданским кодексом:
- бронированная входная дверь;
- стены и потолки - гипсовая штукатурка;
- пол - цементная стяжка;
- электромонтажные работы и розетки «под ключ»;
- Сантехника - разводка труб на заглушке;
- Окна из ПВХ, двойные стеклопакеты с четырехсезонными стеклами;
- полностью готовые террасы;
- лифт;
- роскошные общие зоны;
- контролируемый доступ.
При создании комплекса используются только качественные материалы и технологии, отвечающие требованиям и предпочтениям современного жилищного строительства.
Технические обозначенных отличительных упомянутых обозначенных характеристики:
- вентилируемый фасад из панелей - дерево, облицовка каменными плитами;
- Система утепления «Баумит» с 10 см минеральной ваты;
- белая фасадная штукатурка - «Баумит»;
- темно-серая фасадная штукатурка - «Баумит»;
- высококачественный кирпич «Porotherm» от Wienerberger;
- внутренние гипсовые штукатурки - «ROFIX»;
- лестницы и места общего пользования - гранитные плиты и ступени из цельных гранитных поверхностей;
- для ограждений лестницы и балкона использованы профили из нержавеющей стали и триплексное стекло, кованое железо;
- стены и потолки - гипсовая штукатурка;
- Окна ПВХ с термоэмиссионными стеклопакетами;
- пол в санитарных помещениях - цементная стяжка;
- стены в санитарных помещениях - известково-цементная штукатурка;
- Лифты - высокотехнологичные, новые и бесшумные электрические лифты с автоматическими дверями.
Парковка на 100% охраняемая.
Доступны индивидуальные планы оплаты.
Для просмотра и консультации обращайтесь к брокеру, ответственному за предложение.
Смотр недвижимости
Мы готовы организовать смотр недвижимости в удобное для вас время. Обратитесь к ответственному менеджеру по продажам и проинформируйте его, когда бы Вы хотели приехать на смотровой тур. Мы можем помочь Вам забронировать авиабилет и отель, а также помочь Вам оформить визу и необходимую страховку.
Бронирование недвижимости
Вы можете забронировать недвижимость, заплатив невозмещаемый задаток в размере 2 000 евро наличным платежом, кредитной картой или банковским переводом на фирменный счет компании. После получения задатка недвижимость бронируется, осмотры с другими потенциальными покупателями производиться не будут, и начнется изготовление необходимых документов по оформлению сделки. Пожалуйста, обратитесь к ответственному за данный объект менеджеру по продажам для получения подробной информации относительно процедуры покупки и способов оплаты.
Послепродажное обслуживание
Мы уважаемая компания, за плечами которой многолетний опыт работы в сфере недвижимости. Мы будем сопровождать Вас не только во время покупки, но и после приобретения недвижимости, обеспечивая Вам дополнительный набор услуг с учетом Ваших требовании, для того, чтобы Вы могли насладиться полноценным и спокойным времяпровождением в Болгарии. Услуги, которые мы можем предложить, включают страхование, строительство и ремонт, услуги по меблировке, бухгалтерские и юридическиe услуги, переоформление договоров на электричество, воду, телефон и многое другое.
Прочтите текст на других языках (автоматический перевод)
Месторасположение (приблизительно)
Красным маркером на карте указано приблизительное месторасположение этого объекта недвижимости.
Недвижимость по району, Пловдив
- Недвижимость в р-н«Смирненски«
- Недвижимость в р-н«Кыршияка«
- Недвижимость в р-н«Остромила«
- Недвижимость в р-н«Беломорски«
- Недвижимость в р-н«Центр«
- Недвижимость в р-н«Тракия«
- Недвижимость в р-н«Кючук Париж«
- Недвижимость в р-н«Каменица 1«
- Недвижимость в р-н«Гагарин«
- Недвижимость в р-н«Каменица 2«
Недвижимость по типу, Пловдив
- Трёхкомнатные квартиры в Пловдив
- Двухкомнатные квартиры в Пловдив
- Апартаменты (различные типы) в Пловдив
- Четырехкомнатные квартиры в Пловдив
- Дома в Пловдив
- Квартиры-студии в Пловдив
- Магазины в Пловдив
- Сельскохозяйственные земли в Пловдив
- Инвестиционные земли в Пловдив
- Промышленные земли в Пловдив


ORIGINAL: